Budapest, XVI.kerület
 

Ingatlan adatai
Irányár: 187 000 000 Ft
Típus: ház
Kategória: eladó
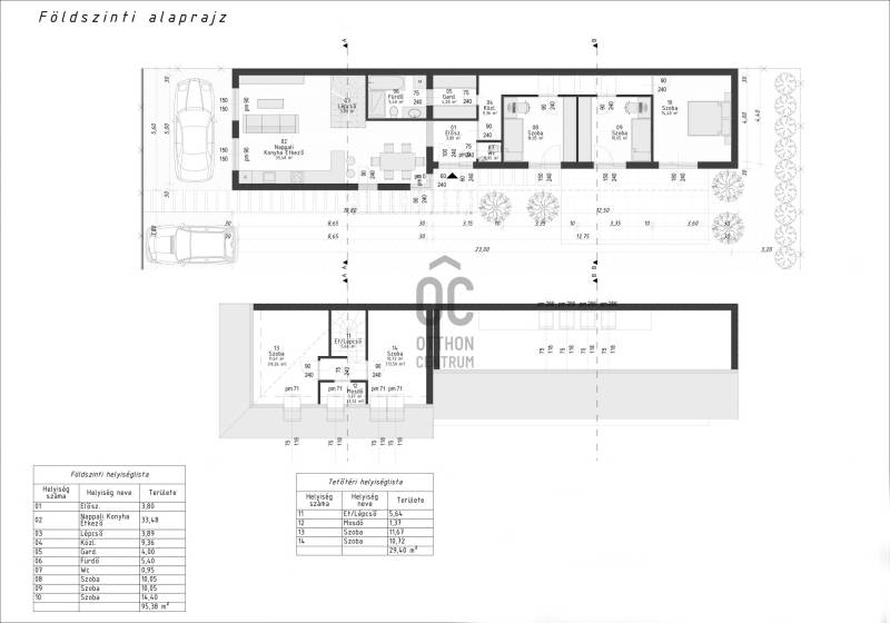
Alapterület: 122 m2
Fűtés: -
Állapota: új
Szobák száma: 6
Építés éve: 2026
Szintek száma: -
Részletes leírás
Ha szeretnél kiszabadulni a belváros zajából, de nem akarsz órákat tölteni ingázással, akkor ez a rákosszentmihályi otthon tökéletes választás lehet számodra!A XVI. kerület egyik legkedveltebb részén, a Füredi úti lakótelep és az Örs vezér tere közelében kínálok eladásra egy amerikai konyhás nappali + 5 szobás, 122 m2-es, belső kétszintes, új építésű lakást, amelyhez 300 m² saját kert és 2 felszíni parkolóhely is tartozik.A modern 2 ház 484 m²-es telken épül, saját kerttel és 2 db parkolóval.A fejlesztő különösen nagy hangsúlyt fektetett a magas műszaki minőségre és a fenntarthatóságra:- Fan-coil fűtési és hűtési rendszer gondoskodik az egész éves komfortos hőmérsékletről.- 3 rétegű, redőnyös nyílászárók és 15 cm-es dryvit hőszigetelés biztosítják a csendet és az energiatakarékosságot.- A 2 kW-os NAPELEMRENDSZER és az A+++ energetikai besorolás pedig garantálják az alacsony rezsit és a környezettudatos működést.Környék, amit imádni fogsz:RÁKOSSZENTMIHÁLY egyre népszerűbb azok körében, akik a nyugodt, zöldövezeti életet keresik, mégis fontos számukra a gyors közlekedés és a városi kényelem.Rendezett utcák, családias hangulat, parkok, játszóterek, iskolák, bevásárlási lehetőségek és az Őrs vezér tere mindössze néhány percre – ez mind hozzájárul ahhoz, hogy valódi otthonra lelj itt.Ez a lakás ideális választás családoknak, pároknak vagy akár idősebbeknek, akik modern, energiatakarékos otthonra vágynak nyugodt, mégis kiválóan megközelíthető környezetben.
További adatok
Telekterület: 484 m2
Kert mérete: 484 m2
Erkély mérete: 30 m2
Felszereltség: -
Parkolás: -
Kilátás: -
Egyéb extrák:  
-
Hirdető adatai
Hirdető neve: Otthon Centrum
Hirdető telefonszáma: +36 70 716 9401