Pest megye, Isaszeg
 

Ingatlan adatai
Irányár: 110 000 000 Ft
Típus: ház
Kategória: eladó
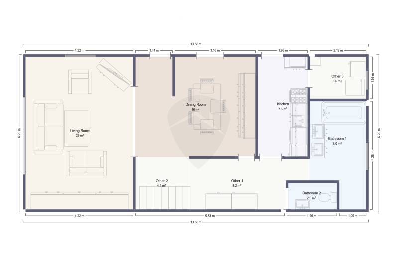
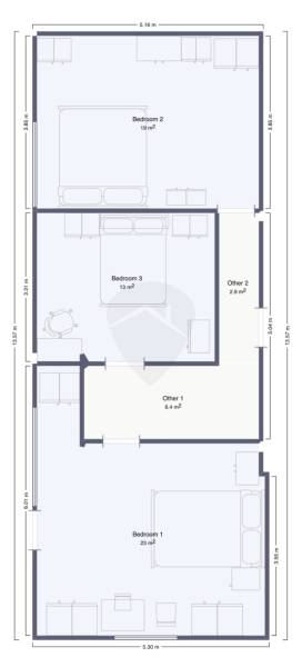
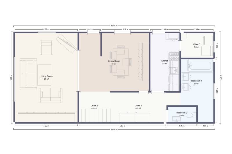
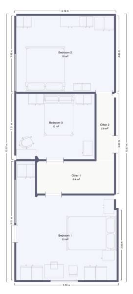
Alapterület: 236 m2
Fűtés: egyéb
Állapota: -
Szobák száma: 6
Építés éve: 1979
Szintek száma: -
Részletes leírás
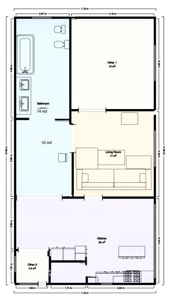
Eladó kétgenerációs családi ház Isaszegen – 236 m², 1086 m² telkenIsaszeg csendes, kertvárosi részén eladó egy téglaépítésű, összesen 236 m²-es családi ház, amely két különálló lakrészből áll, így kiváló választás nagycsaládosoknak vagy kétgenerációs együttélésre is.A kisebb, 96 m²-es fiatalos, modern lakás:- előtér- tágas amerikai konyhás nappali erkéllyel- óriási fürdőszoba: dupla mosdó, kád, zuhanyzó, WC, bidé- 2 szobaEz a lakrész 1956-ban épült, majd 2000-ben teljes körű felújításon esett át, mely magába foglalja a vezetékek cseréjét, nyílászáró cserét, fűtés korszerűsítést, ház szigetelését.A nagyobb, 140 m²-es két szintes lakás:Alsó szint:- előtér- hatalmas nappali- konyha - kamra- étkező- fürdőszoba - külön WC- étkezőből és konyhából nyíló hatalmas fedett teraszFelső szint:- 3 hálószoba- két szobából nyíló 13 m²-es erkélySzuterén szint:- garázs és tároló- kazánházEz a ház 1979-ben épült, folyamatos felújításon ment keresztül. 2000-ben műanyag nyílászárókkal, 8 cm EPS szigeteléssel és cserepeslemez tetőfedéssel látták el az egész házat.Telek és extrák:- 1086 m² telek- gondozott kert telis-tele különféle gyümölcsfákkal- kétállásos garázs az udvarban- fúrt kút a kerti locsoláshoz- vegyes tüzelésű kazán + kiépített gázcirkó (csak rácsatlakozni szükséges)- meleg vizet gázbojler biztosítjaEz az ingatlan tágas tereivel, két különálló lakrészével és kiváló adottságaival ritka lehetőség a környéken.Jöjjön el, nézze meg, szeressen bele! Legyen ez a családi otthon az új családi fészek!
További adatok
Telekterület: 1 086 m2
Kert mérete: 1 086 m2
Erkély mérete: -
Felszereltség: -
Parkolás: -
Kilátás: utcai
Egyéb extrák:  
-
Hirdető adatai
Hirdető neve: Intor Ingatlan Powered By RH
Hirdető telefonszáma: +36 70 467 6820