Pest megye, Tóalmás
 

Ingatlan adatai
Irányár: 52 000 000 Ft
Típus: ház
Kategória: eladó
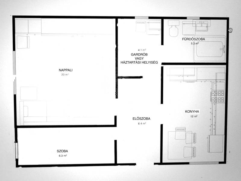
Alapterület: 80 m2
Fűtés: egyéb
Állapota: -
Szobák száma: 1+2
Építés éve: 1960
Szintek száma: -
Részletes leírás
Eladásra kínálok Tóalmáson egy 417 nm-es telken fekvő két lakrészből álló családi házat.Első lakrész áll: 1 és fél szoba, nagy fürdő sarokkáddal, konyha-étkező, előszoba, háztartási helyiség ami akár gardróbszoba is lehet. Falmozgatással akár 2 nagy szoba is kialakítható.Második lakrész: konyha-nappali és fürdőszobaA ház az 1960-as években épült vegyes falazattal. Jelenlegi tulajdonos az idei évben teljeskörűen felújította és igényesen szépítette a családi házat és a teljes udvart. Teljes nyílászáró csere, villamos- és víz hálózat csere megtörtént, a ház külső szinezést kapott, kerítés festésére, udvar tereprendezésére is sor került. Az udvarban aluminium garázs áll, melyben két gépjármű kényelmesen elfér, de az udvarban is van lehetőség a parkolásra.A második, hátsó lakrész kiválóan alkalmas vendégek, hozzátartozó elszállásolására, vagy akár egy vállalkozásra is alkalmas helyiség. Ki lehet alakítani itt akár egy szépségszalont vagy varrodát vagy bármit.A két lakrész külön mérőórákkal rendelkezik, ezért akár kiadásra is tökéletes!A házhoz tartozik egy tároló és egy szerelőaknás garázs is!Itt minden egy helyen megtalálható: Egy családi otthon, külön lakrész (üzlethelyiség), két állásos garázs, tároló, szerelőaknás garázs műhellyel, mindez egy szép virágos udvarral körülvéve.Jöjjön el és nézze meg!
További adatok
Telekterület: 414 m2
Kert mérete: 414 m2
Erkély mérete: -
Felszereltség: -
Parkolás: -
Kilátás: utcai
Egyéb extrák:  
-
Hirdető adatai
Hirdető neve: Intor Ingatlan Powered By RH
Hirdető telefonszáma: +36 70 467 6820