Pest megye, Kóka
 

Ingatlan adatai
Irányár: 62 900 000 Ft
Típus: ház
Kategória: eladó
Alapterület: 93 m2
Fűtés: -
Állapota: új
Szobák száma: 4
Építés éve: 2025
Szintek száma: -
Részletes leírás
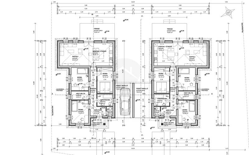
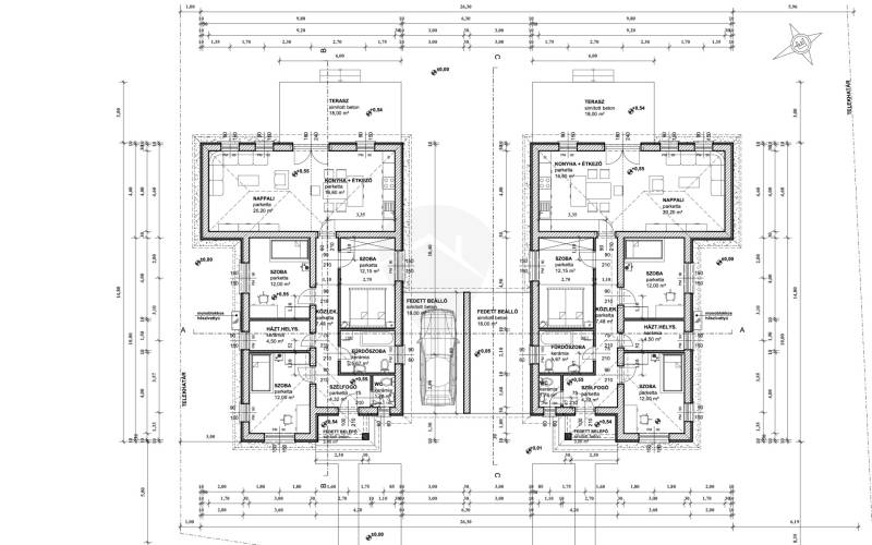
Kókán eladó 4db újépítésű ikerház külön kerített 530 m2 telkeken az Újvilág utcában!A házakat fedett gépkocsibeállóval kötik össze, így nincs közös fal.-Telek mérete: 530 m²-Nettó hasznos alapterület: 97 m²-Földszintes ikerfélKivitelező és referencia:A kivitelező több azonos terv alapján készült ingatlant valósított meg Sülysápon és KókánElérhető támogatások:-CSOK Plusz-Otthon StartSzerkezet és szigetelés:-Falazat: 30 cm nútféderes tégla-Födém: fafödém-Tetőfedés: antracit színű betoncserép-Homlokzat: 15 cm EPS hőszigetelés-Padló: 10 cm Austrotherm AT-N100 szigetelés-Vízszintes födém: 25 cm ásványgyapot szigetelésNyílászárók:-Hat légkamrás, háromrétegű üvegezéssel szerelt ablakokFűtés:-Monoblokkos hőszivattyús rendszer-PadlófűtésAlap műszaki tartalom (választható keretösszegekig):-Hidegburkolat: 3.000 Ft/m²-Melegburkolat: 3.000 Ft/m²-Csaptelepek: 15.000 Ft/db-Kád vagy zuhanyzó: 40.000 Ft-Beltéri ajtók: 35.000 Ft/dbElektromos kiépítés:-Szobánként 3 konnektor-Nappaliban 4 konnektor + internet és kábel TV kiállás-Konyhában 6 konnektor-Világítás helyiségenként 1 pont-Kábeltévé előkészítésTovábbi lehetőségek:-Magasabb kategóriájú műszaki tartalom is választható a különbözet finanszírozásával-Riasztórendszer előkészítés-Kapumozgató elektronika előkészítésIgény esetén komplett tervdokumentáció és részletes műszaki leírás biztosítottÁtadás:2026. II. negyedévTeljes körű ingyenes tanácsadás, hitelügyintézésIntor Ingatlan
További adatok
Telekterület: 750 m2
Kert mérete: 750 m2
Erkély mérete: 20 m2
Felszereltség: -
Parkolás: -
Kilátás: utcai
Egyéb extrák:  
-
Hirdető adatai
Hirdető neve: Intor Ingatlan Powered By RH
Hirdető telefonszáma: +36 70 412 5808