Budapest, IX.kerület
 

Ingatlan adatai
Irányár: 500 000 Ft/hó
Típus: kereskedelmi/ipari ingatlan
Kategória: kiadó
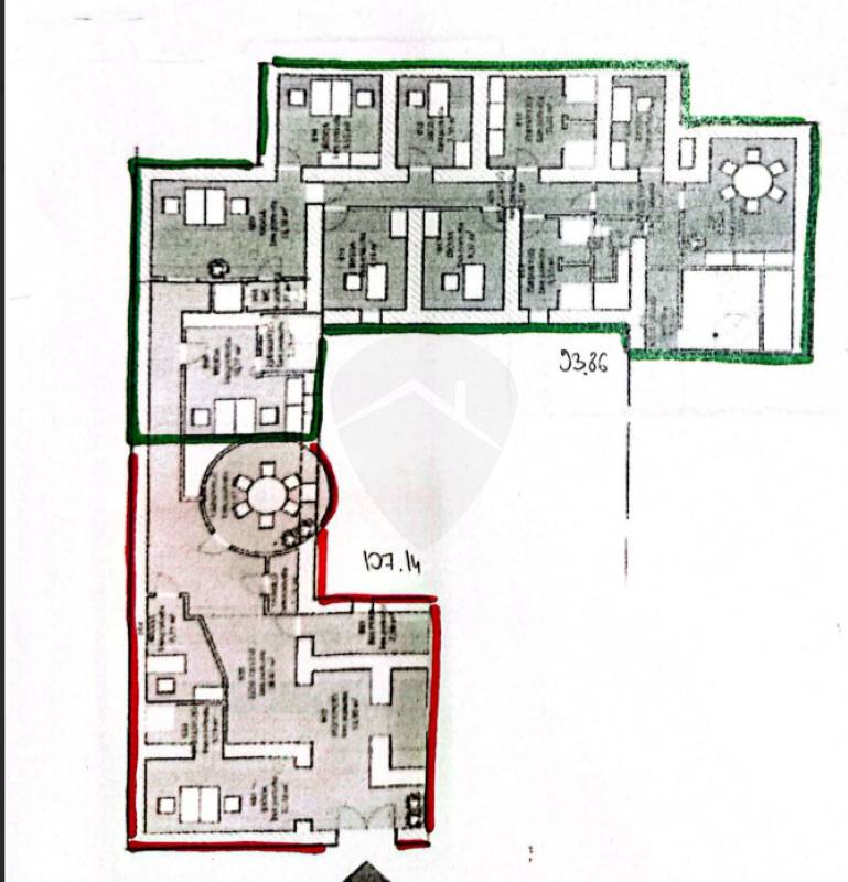
Alapterület: 210 m2
Fűtés: -
Állapota: -
Szobák száma: -
Építés éve: -
Szintek száma: -
Részletes leírás
KIADÁSRA kínálom ezt a 210 m² alapterületű, szuterén ÜZLETHELYISÉGET a méltán közkedvelt, forgalmas FERENC KÖRÚTON.Elrendezését tekintve az ingatlan rendelkezik több szobával (köztük dohányzószobával, illetve hangszigetelt szobával), 5 fürdővel, illetve 5 WC-vel. Az üzlethelyiségben működtethető büfé konyha, mely alkohol engedéllyel rendelkezik. Az ingatlan fűtéséről egy ipari teljesítményű gázkazán gondoskodik. Az ingatlan Wi-fivel felszerelt. A biztonságot monitoron ellenőrizhető kamerarendszer garantálja. Az építményadó összege havi 17.200 Forint, a közös költség pedig 32.800 Forint.Tökéletes akár sporttevékenységekre, de elrendezéséből adódóan szabadulószobáknak is kiváló, vagy rendezvények szervezésére is a hangszigetelt területei miatt.Amennyiben ez a KIVÁLÓ LOKÁCIÓVAL rendelkező üzlethelyiség felkeltette az érdeklődését, keressen bizalommal, szívesen mutatom!AUER Ingatlan
További adatok
Telekterület: -
Kert mérete: -
Erkély mérete: -
Felszereltség: -
Parkolás: -
Kilátás: -
Egyéb extrák:  
-
Hirdető adatai
Hirdető neve: Auer Ingatlan
Hirdető telefonszáma: +36304551691