Vas megye, Ólmod
 

Ingatlan adatai
Irányár: 75 900 000 Ft
Típus: ház
Kategória: eladó
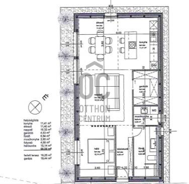
Alapterület: 75 m2
Fűtés: -
Állapota: új
Szobák száma: 2
Építés éve: 2025
Szintek száma: -
Részletes leírás
Az ingatlanpiac dinamikus világában a fiatal felnőttek számára egy különleges lehetőséget kínálunk, amely tökéletesen illeszkedik a modern életstílushoz. Ez a kiváló állapotú, új ház Ólmod szívében található, Vas vármegyében, egy csendes és barátságos környezetben. Az ingatlan 75 négyzetméteres alapterülettel rendelkezik, amely ideális otthont biztosít akár egy fiatal párnak, akár egy kis családnak. A ház két szobája világos és barátságos légkört teremt, míg a fürdőszoba egy modern, frissítő élményt nyújt. A telek mérete 885 négyzetméter, így elegendő helyet biztosít a szabadtéri tevékenységekhez, a pihenéshez vagy akár a kertészkedéshez is. A ház környezetbarát megoldást kínál, mert a klímaberendezés garantálja a kellemes hőmérsékletet. Az ingatlan LED hangulatvilágítása különleges atmoszférát teremt az ingatlanban. Ólmod nemcsak a nyugalom szigete, hanem remek közlekedési lehetőségekkel is rendelkezik. A közeli települések könnyen megközelíthetők autóval, míg a tömegközlekedési lehetőségek is biztosítják a gyors és kényelmes utazást a környező városokba. Az ingatlan közelében található bolt, iskola és orvosi rendelő, ami különösen előnyös a fiatal családok számára. A környék biztonságos és csendes, ideális helyszínt biztosít a pihenésre és a feltöltődésre. A Falusi Csok támogatás révén ez az ingatlan kiváló lehetőséget nyújt a fiatalok számára, hogy saját otthonra tegyenek szert, amely nemcsak anyagilag, hanem érzelmileg is megéri a befektetést. Az ingatlan iránt érdeklődők bizalommal kereshetnek minket kérdéseikkel kapcsolatban, hiszen célunk, hogy segítsünk Önnek megtalálni álmai otthonát egy olyan helyen, ahol a mindennapok örömeit élvezhetik. Ne habozzon, lépjen kapcsolatba velünk, és tapasztalja meg ezt a páratlan lehetőséget!Ez az ingatlan a \"Hűség csomag\" megbízási portfólióhoz tartozik. Részletek az Otthon Centrum weboldalán.
További adatok
Telekterület: 885 m2
Kert mérete: 885 m2
Erkély mérete: -
Felszereltség: -
Parkolás: -
Kilátás: -
Egyéb extrák:  
-
Hirdető adatai
Hirdető neve: Otthon Centrum
Hirdető telefonszáma: +36 70 412 3841