Budapest, V.kerület
 

Ingatlan adatai
Irányár: 94 500 000 Ft
Típus: lakás (tégla)
Kategória: eladó
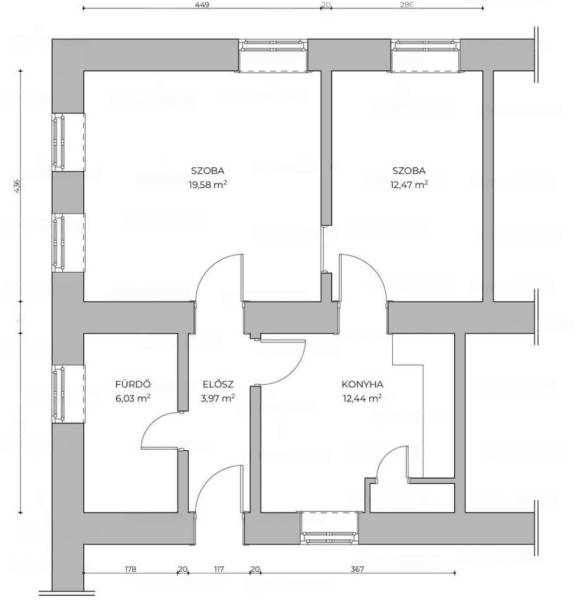
Alapterület: 56 m2
Fűtés: elektromos
Állapota: -
Szobák száma: 2
Építés éve: -
Szintek száma: 1
Részletes leírás
Hangulatos lakás a Veres Pálné utcában – kilátással a templomkertreBudapest belvárosában, az V. kerület egyik legkarakteresebb utcájában, a Veres Pálné utcában kínálunk eladásra egy 56 m²-es, két szobás, első emeleti lakást, közvetlenül a Szerb templom mellett. A társasház mindössze két szintes, rendezett és nyugodt, belső kertje zöld szigetként veszi körül az épületet.A lakás déli tájolású, a nappali ablakai a templom kertjére néznek, ami különleges atmoszférát ad a térnek.Az ingatlan jó állapotú, a fűtés elektromos radiátorral működik, de a gáz be van vezetve, így igény esetén átalakítható. A jelenlegi tulajdonos bérlőkkel együtt értékesíti az ingatlant, akik szándékuk szerint a tulajdonosváltás után is maradnának, így befektetési célra is azonnal hasznosítható.A környék adottságai kiemelkedők: néhány perc alatt elérhető a Váci utca, a Nagyvásárcsarnok, az Egyetem tér, számos kávézó, étterem és szolgáltatás. A lokáció nemcsak turisztikai és befektetési szempontból előnyös, hanem azok számára is ideális, akik a történelmi belváros pezsgését szeretnék egy nyugodt, belső kertre néző otthon kényelmével kombinálni.Jöjjön el, nézze meg és tegyen ajánlatot!ID:388385
További adatok
Telekterület: -
Kert mérete: -
Erkély mérete: -
Felszereltség: -
Parkolás: -
Kilátás: kertre néző
Egyéb extrák:  
-
Hirdető adatai
Hirdető neve: GDN Ingatlanhálózat
Hirdető telefonszáma: +36-30-828-2621