Csongrád megye, Mindszent
 

Ingatlan adatai
Irányár: 9 000 000 Ft
Típus: ház
Kategória: eladó
Alapterület: 131 m2
Fűtés: gáz (cirko)
Állapota: felújítást igényel
Szobák száma: 4
Építés éve: 1970
Szintek száma: -
Részletes leírás
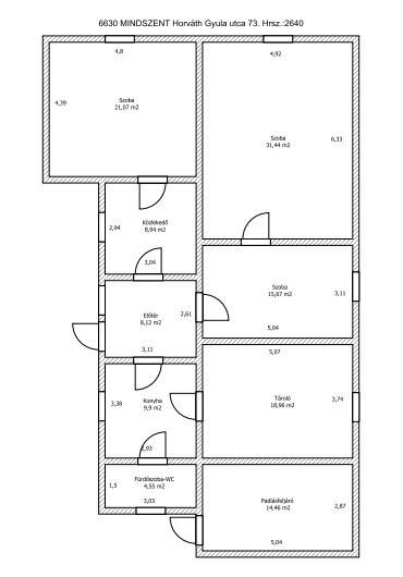
Mindszenten, a Tiszai Strand közelében, nyugodt, természetközeli környezetben kínáljuk megvételre ezt a 130 m2-es családi házat.>> 1044 m2-es telek>> villíany, gáz, víz, csatorna bekötve>> gázközponti (cirkó) fűtés, radiátoros hőleadókkal>> nappali + 3 szoba>> vegyesfalazat>> részben felújítottTovábbi információért keressen bizalommal!
További adatok
Telekterület: 1 044 m2
Kert mérete: 1 044 m2
Erkély mérete: -
Felszereltség: -
Parkolás: -
Kilátás: -
Egyéb extrák:  
-
Hirdető adatai
Hirdető neve: Otthon Centrum
Hirdető telefonszáma: +36 70 412 5011