Jász-Nagykun-Szolnok megye, Újszász
 

Ingatlan adatai
Irányár: 30 000 000 Ft
Típus: ház
Kategória: eladó
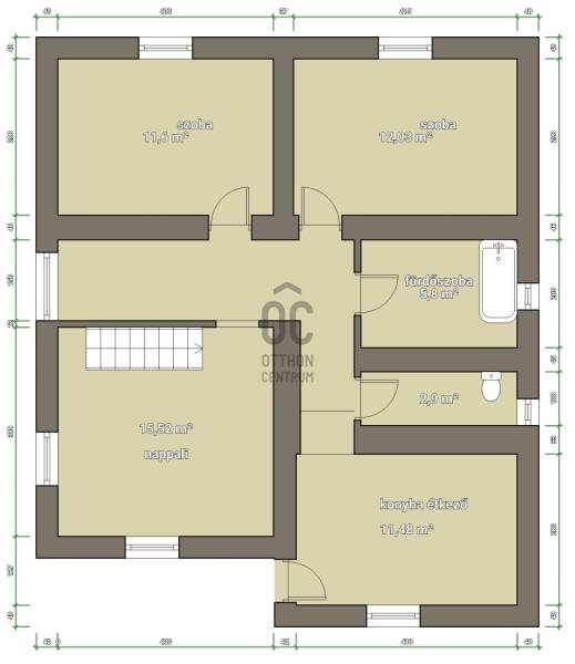
Alapterület: 110 m2
Fűtés: gáz (konvektor)
Állapota: -
Szobák száma: 4
Építés éve: 1980
Szintek száma: -
Részletes leírás
Újszászon, a vasútállomás közelében eladó, felújított, kétszintes családi ház:- beton alapon, tégla falazat,- 110nm belső hasznos alapterület,- 4 szoba,- új külső vakolat,- új villany- és vízvezetékek,- új fürdőszoba,- új műanyag nyílászárók,- konvektoros fűtés,- hűtő- fűtő klíma,- összközműves, összkomfortos,- felújított cseréptető,- 341nm telek.A vasútállomás gyalogosan 400méterre található.Az ingatlan per-és tehermentes, azonnal költözhető. Irodánkban bankfüggetlen hitelügyintézéssel állunk ügyfeleink rendelkesére.A hirdetésben szereplő információk a megbízótól származnak, azért az iroda felelősséget nem vállal.
További adatok
Telekterület: 341 m2
Kert mérete: 341 m2
Erkély mérete: -
Felszereltség: -
Parkolás: -
Kilátás: -
Egyéb extrák:  
-
Hirdető adatai
Hirdető neve: Otthon Centrum
Hirdető telefonszáma: +36 70 461 9121