Pest megye, Diósd
 

Ingatlan adatai
Irányár: 210 000 000 Ft
Típus: ház
Kategória: eladó
Alapterület: 132 m2
Fűtés: -
Állapota: új
Szobák száma: 4
Építés éve: 2026
Szintek száma: -
Részletes leírás
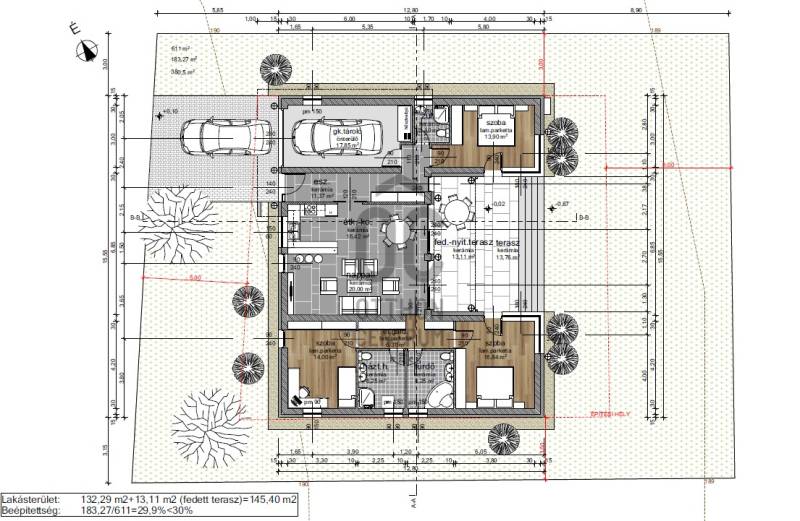
Egy igazán különleges lehetőséget kínálunk Önnek, amely nemcsak a modern életstílushoz igazodik, hanem a befektetési lehetőségek szempontjából is kiemelkedő. Diósdon, újépítésű családi ház, mely az Ön izlése szerint még alakítható. Ahol a városi élet nyüzsgése és a természet közelsége harmonikusan találkozik. Ingatlan alapterülete 132,29 m2-Nappali 20,00 m2-Szoba13,90 m2-Szoba 14,00 m2-Szoba 16,84 m2-Előszoba 11,37 m2-Étkező - konyha 16,42 m2-Fürdőszoba 6,25 m2-Zuhanyzó 3,10 m2-Gerdrób 6,31 m2-Tároló 6,25 m2-GK tároló 17,85 m2-Terasz 13,11 m2A ház hőszivattyús H tarifás fűtése modern és energiatakarékos megoldás, amely nemcsak a fenntartási költségeket csökkenti, hanem a környezet védelmét is szolgálja. Az ingatlan minden szobája és a nappalija klimatizált. Elektromos auto töltő, elektromos redőnyök-, szúnyoghálóval ellátva a magasabb kényelmet biztosítja új tulajdonosa számára. Garázskapu szintén elektromos, e mellett kamera rendszer és riaszt biztosítja a tulajdonosok védelmét.Budapest autóval 15 perc, közelben iskola, óvoda , bevásárlási lehetőségek, orvosi rendelő, busz meg álló 5 perc seta.Autópályák gyorsan elérhetőek M6,M0,M7. Amennyiben felkeltette érdeklődését ez a kivételes ingatlan, ne habozzon kapcsolatba lépni velünk a hét bármely napján! Kérdéseivel és igényeivel bátran kereshet minket, hiszen célunk, hogy a lehető legjobb megoldást nyújtsuk Önnek az ingatlanpiacon. Az Ön új otthona már csak egy lépésnyire
További adatok
Telekterület: 611 m2
Kert mérete: 611 m2
Erkély mérete: 13 m2
Felszereltség: -
Parkolás: -
Kilátás: -
Egyéb extrák:  
-
Hirdető adatai
Hirdető neve: Otthon Centrum
Hirdető telefonszáma: +36 70 461 9991