Budapest, III.kerület
 

Ingatlan adatai
Irányár: 549 000 000 Ft
Típus: ház
Kategória: eladó
Alapterület: 700 m2
Fűtés: gáz (cirko)
Állapota: -
Szobák száma: 7
Építés éve: 1999
Szintek száma: -
Részletes leírás
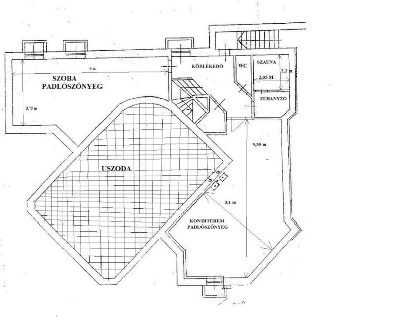
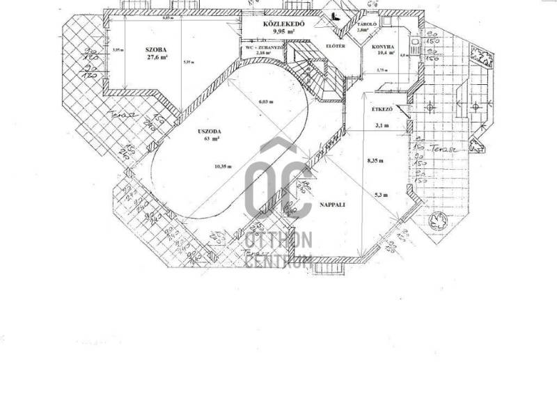
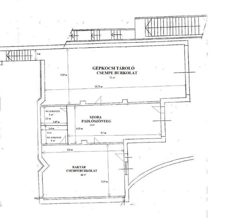
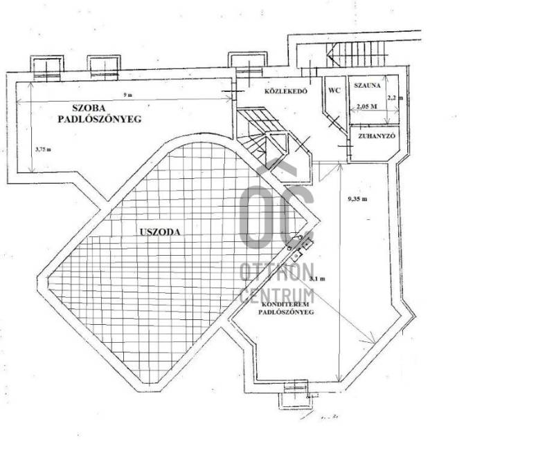
Fedezze fel Budapest 3. kerületének egyik legszebb, frekventált részén található, kivételes lehetőségeket rejtő ingatlanunkat, amely tökéletes választás lehet családok, illetve befektetők számára egyaránt.Az eladásra kínált családi ház 700nm-es, 1511 négyzetméteres tágas, gondozott kerttel rendelkező telken található, a III. kerületi Táborhegyen. A ház 1999-ben épült, kiváló minőségű 38-as Porotherm téglából, amelyet külső nemes vakolat borít. Műanyag nyílászárókkal rendelkezik, melyek redőnnyel felszereltek, biztosítva a hatékony hőszigetelést és árnyékolást. A ház korának megfelelően, jó állapotban, folyamatosan karbantartott állapotban van.A négy szinten 7 kényelmes szobával rendelkezik, öt fürdőszobával és emeletenként mellékhelyiségekkel, ezáltal maximális kényelmet és funkcionalitást kínál a lakóknak. A földszinten egy 40 négyzetméteres belső medence található, mely egyedi és luxus kikapcsolódást biztosít. A pincében található fűtött 70nm-es garázs akár 6 személygépkocsi befogadására is alkalmas, és igény esetén tovább bővíthető.Az utcafrontról könnyen megközelíthető, a telek adottsága miatt egy szinten van az úttesttel.Az emeletről tökéletes panoráma tárul elénk.A házban légkondicionálók és riasztórendszer is található, biztosítva a teljes kényelmet és a biztonságot.A 2021-ben a gépészet felújítása során került beépítésre a Bosch típusú kondenzációs kazán, mely távoli wifi vezérléssel is működtethető, és ellátja a teljes épület fűtését, a használati melegvíz ellátást, valamint a medence vízének optimális hőmérsékletre való felmelegítését. A hőleadók a komfort érzetet biztosító padlófűtés, kiegészítve radiátorokkal. Az ingatlan méretéhez képest meglepően kedvezőek a rezsi költségek. A beépített kényelmes szauna gondoskodik a lakók testi és lelki felfrissüléséről.A helyiségek listája emeletenként:•Garázs szint: garázs, szoba külön bejárattal, fürdőszobával és wc-vel,•Szuterén szint: szoba –gardróbszoba, konditerem, szauna, fürdő, wc, illetve a ház gépészete.•Földszint:160nm, itt található konyha, nappali+ étkező, dolgozószoba, medencetér, fürdő + wc, tároló, két oldalon is nagy teraszok•Emelet: 160nm, 3 hálószoba, nagy fürdőszoba + wc, gardrób, erkélyekA családi ház kiválóan megközelíthető tömegközlekedéssel, a buszmegálló mindössze 15 méterre található, (137,237,937) a villamosmegálló pedig kb. 500 méterre. (17,19,41)A közeli Óbuda bevásárlóközpont lehetőséget biztosít a kényelmes vásárlásra. Továbbá óvodák, iskolák, középiskolák, golfpálya és teniszpályák is megtalálhatóak a környéken, így minden korosztály számára ideális az infrastruktúra.A közelben található kéttannyelvű angol iskola kiváló lehetőség a gyermekek részére.Az épülethez szintenként 100nm hozzáépíthető, így azoknak is sok lehetőséget nyújt akik egy többgenerációs házat keresnek a család új otthonának, akár két külön álló lakás kialakításával is. Egy esztétikai felújítás után hangulatos, csendes, és minden igényt kielégítő otthon válhat belőle.Az ingatlan ideális választás lehet üzleti szempontból is, mivel kiváló lehetőségeket nyújt elhelyezkedése miatt. Megfelelő lehet cégközpontnak, irodáknak, egészségügyi központnak, különböző sport és egészségmegőrző tevékenységet kínáló vállalkozás részére.Kisebb ingatlan beszámításától nem zárkózik el a tulajdonos.További kérdésekkel, kérem, keressen az elérhetőségeim valamelyikén.Esetleges hitel igénylés során tudunk segíteni teljeskörű lebonyolítással, a lehető legkedvezőbb ajánlat kiválasztása mellett.
További adatok
Telekterület: 1 514 m2
Kert mérete: 1 514 m2
Erkély mérete: -
Felszereltség: -
Parkolás: -
Kilátás: -
Egyéb extrák:  
-
Hirdető adatai
Hirdető neve: Otthon Centrum
Hirdető telefonszáma: +36 70 469 3001