Pest megye, Tököl
 

Ingatlan adatai
Irányár: 49 900 000 Ft
Típus: lakás (panel)
Kategória: eladó
Alapterület: 62 m2
Fűtés: házközponti egyedi méréssel
Állapota: felújított
Szobák száma: 2+1
Építés éve: 1982
Szintek száma: 4
Részletes leírás
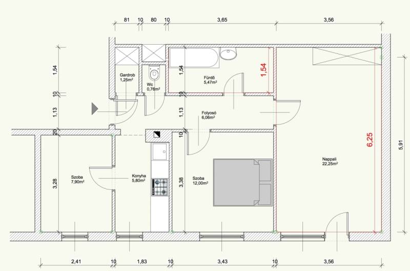
TÖKÖLÖN A PESTI ÚTI LAKÓTELEPEN ELADÓVÁ VÁLT, EGY KÉT ÉS FÉL SZOBÁS 62 NM ALAPTERÜLETŰ NEGYEDIK EMELETI FRANCIA ERKÉLYES TELJES-KÖRŰEN FELÚJÍTOTT LAKÁS!A lakás 4 szintes társas-ház negyedik emeletén helyezkedik el. Elosztása: előtér 6,06 m2, nappali 22,25 m2, szoba 12,00 m2, szoba 7,90 m2, konyha 5,80 m2, fürdőszoba 5,47 m2, külön toalett 0,76 m2, gardrób 1,25 m2, az ingatlanhoz a földszinten 4 nm zárható tároló is tartozikA társas-ház melyben a lakás elhelyezkedik rendezett, jó lakó közösségnek örvend!.Burkolatai: fürdőszobában, wc-ben kerámia lap,egyéb helyiségekben laminált parketta, homlokzati nyílászárói műanyag szerkezetűek redőnyözöttek.A lakás jelenlegi állapotát 2019-ben érte el. Ekkor megújult a teljes villamos hálózat, a teljes vízhálózat, minden burkolat, minden nyílászáró, beleértve a beltéri nyílászárókat és a bejárati ajtót is ami egy több ponton záródó biztonsági ajtóra lett cserélve. 2020-ban be építésre került egy hűtő fűtő split klíma is.Fűtése és meleg víz ellátása házközponti. Közös költség 16050 Ft/hó.A konyhaszekrény a beépített gépekkel a vételár részét képezik.A közelben megtalálható a közért, az orvosi rendelő, a posta, a bölcsőde, az óvoda, az iskola és az uszoda, illetve egy konditerem,a Duna part 15 perc, Közösségi közlekedés 10 perc séta távolságra.FINANSZÍROZÁS:Nálunk mindent egy helyen intézhet:- hivatalos ingatlanközvetítés;- szakszerű jogi képviselet;- profi CSOK-PLUSZ, és hitelügyintézés: 16 Bank, több mint 100 konstrukció;VÁROM MEGTISZTELŐ HÍVÁSÁT!A részletes adatvédelmi tájékoztató folyamatosan elérhető a gdn-ingatlan adatvédelmi oldalon.
További adatok
Telekterület: -
Kert mérete: -
Erkély mérete: 1 m2
Felszereltség: -
Parkolás: -
Kilátás: utcai
Egyéb extrák:  
-
Hirdető adatai
Hirdető neve: GDN Ingatlanhálózat
Hirdető telefonszáma: +36-30-641-6167