Budapest, XVIII.kerület
 

Ingatlan adatai
Irányár: 159 990 000 Ft
Típus: ház
Kategória: eladó
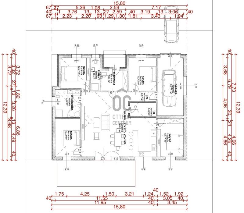
Alapterület: 164 m2
Fűtés: -
Állapota: új
Szobák száma: 5
Építés éve: 2025
Szintek száma: -
Részletes leírás
Eladó újépítésű családi ház Budapest XVIII. kerület Almáskert csendes mellékutcában!Az ingatlan egy hátsó telekrészen helyezkedik el, amit szolgalmi úton lehet megközlelíteni.164 nm hasznos alapterületű földszíntes, amerikai konyhás nappali, 4 hálós, 2 fürdőszoba-wc, háztartási helyiség, terasz és saját 660m2 kert!Helyiségei: -szoba: 12,37-m2 -szoba:13,09-m2 -szoba:12,42-m2-szoba:13,77m2 -konyh- ékező-nappali együtt: 57 m2-kádas fürdő: 9,52m2-zuhanyzós fűrdő:4,2m2- háztartási helyiség :5m2 -előszoba:7,39 m2- garázs 20,76m2Műszaki tartalom (részlet)- falazata 30-as Leier 10 cm-es grafitos szigeteléssel, lábazat 15 cm XPS szigetelés- válaszfalak 10 cm-es Leier tégla- födémen 20 cm-es kőzetgyapot szigeteléssel- hőszivattyú padlófűtéssel- 3 rétegű külső nyílászárókA fűtése hőszivattyús, padlófűtés az egész házban-választható vagy a nappaliban 3,5 kw-os klíma, vagy klíma kiállás kiépítése minden szobában!-elektromos kapu,-napelem előkészítés,-komplett kamerarendszer riasztóval beépítveAmi vételár részét képezi:Meleg burkolat: 5000ft/m2 amely tartalmazza a filc alátétet és a szegélyt is.Hideg burkolat: 5000ft/m2 amely tartalmazza a fugát és a burkolat váltókat is.Belső tartozékok, szaniter árak:-beltéri ajtó kilinccsel 80.000 Ft/db-kád tartozékaival 80.000 Ft/db-csap 20.000 Ft/db-mosdó 20.000 Ft/db-plusz víz csatorna kiállás kérésre 50.000 Ft/db-villanykiállás fejegységenként 30.000 Ft/db-Kerti csap ára kompletten szerelve: 100.000 Ft/dbszaniterek belső nyílászárók készültségi foktól függően választhatók.Megbeszélés és egyeztetés alapján kérhetők plusz extrák és változtatások!Az ingatlan osztatlan közös ügyvédi megosztással lesz!A lakás az összes jelenleg futó támogatásra jogosult!Az ingatlan 30% önerővel lefoglalható!Várható átadás 2026.III. negyedév!Amiben segítünk :független Hitelszakértő, ügyvédi háttér!!Hívjon a hét bármelyik napján további információért!
További adatok
Telekterület: 660 m2
Kert mérete: 660 m2
Erkély mérete: -
Felszereltség: -
Parkolás: -
Kilátás: -
Egyéb extrák:  
-
Hirdető adatai
Hirdető neve: Otthon Centrum
Hirdető telefonszáma: +36 70 412 4346