Tolna megye, Paks
 

Ingatlan adatai
Irányár: 24 700 000 Ft
Típus: ház
Kategória: eladó
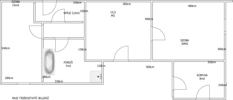
Alapterület: 70 m2
Fűtés: egyéb
Állapota: felújítást igényel
Szobák száma: 2
Építés éve: 1950
Szintek száma: -
Részletes leírás
ELADÓ PARASZTHÁZ PAKS-CSERESZNYÉSBEN!El akarsz menni a város zajától de mégi közel?Akkor itt a helyed!Pakstól 7-re található felújítandó vegyes falazatú parasztház eladó. /Belterület/A ház kb. 60% vert fal a többi tégla.Csodálatos vidéki házikót tudsz varázsolni belőle igényed szerint.70 m2-es 2 szoba, nappali, konyha fürdő található benne.Fürdőszobában kád és zuhanyzó is van kialakítva.Kellemes tágas fedett terasz van .Villany bent van 3 fázis is.Vizet egy ásott kút biztosítja szivattyúval. kb. 9m3-es zárt emésztő lett ki építve.Ha esetleg gazdálkodni szeretnél arra is van lehetőség mivel 2703m2-es a telek és vannak gazdasági épületek.Csendes környezet kevés forgalom van ott.Ha felkeltettem az érdeklődésedet nyugodtan keress.
További adatok
Telekterület: 2 703 m2
Kert mérete: 2 703 m2
Erkély mérete: -
Felszereltség: -
Parkolás: -
Kilátás: -
Egyéb extrák:  
-
Hirdető adatai
Hirdető neve: Otthon Centrum
Hirdető telefonszáma: +36 70 469 3596