Budapest, V.kerület
 

Ingatlan adatai
Irányár: 144 843 750 Ft
Típus: lakás (tégla)
Kategória: eladó
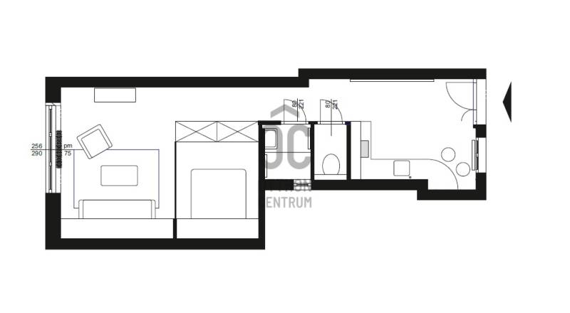
Alapterület: 42 m2
Fűtés: házközponti egyedi méréssel
Állapota: -
Szobák száma: 1
Építés éve: -
Szintek száma: -
Részletes leírás
Egy hangulatos tér a belváros közepén, ahol a XVIII. és XXI. század építészete harmóniában együtt él.A tér déli oldalán a Szent Anna templom és a pár éve átadott Emerald Residence modern épülete öleli egymást.Nyugati részén a korai modern szecesszió egyik ikonikus épülete a „Török- bankház” szemléli új szomszédját a Szervita Square Building üveg palotáját.Itt található Lajta Béla, Rózsavölgyi háza is a földszinten üzletekkel, felettük a Rózsavölgyi szalonnal, a felső emeleteken pedig lakásokkal.A lakás a Rózsavölgyi ház 3. emeletén a térre néz.42 m2, a térre néző nappali hátsó frontján üveg tolóajtóval leválasztva egy hálófülke található. Konyhája modern, gépesített, ablakkal a ház belső udvara felé.A fürdőben épített zuhany, henger alakú kézmosóval került kialakításra.A közlekedő mennyezetig érő gardróbjában kapott helyet a mosó – szárító gép.A lakás klimatizált, fűtése házközponti.Ideális választás otthonnak, befektetésnek
További adatok
Telekterület: -
Kert mérete: -
Erkély mérete: -
Felszereltség: -
Parkolás: -
Kilátás: utcai
Egyéb extrák:  
-
Hirdető adatai
Hirdető neve: Otthon Centrum
Hirdető telefonszáma: +36 70 716 9196