Baranya megye, Cún
 

Ingatlan adatai
Irányár: 9 500 000 Ft
Típus: ház
Kategória: eladó
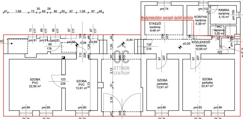
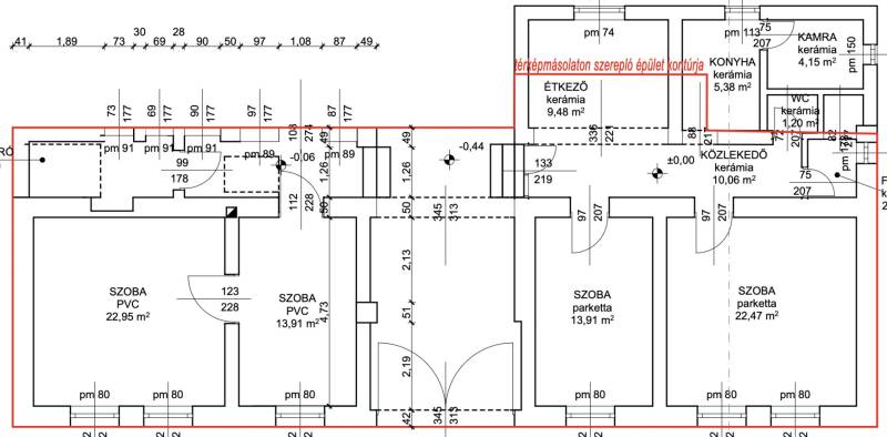
Alapterület: 70 m2
Fűtés: gáz (konvektor)
Állapota: -
Szobák száma: 4
Építés éve: 1960
Szintek száma: -
Részletes leírás
Egy igazán különleges lehetőség vár rád Baranya vármegyében, Cúnban, ahol a csendes környezet és a tágas tér találkozik.- Ár: 9 500 000 Ft- Ház típusa: Önálló családi ház (tégla épület)- Alapterület: 110 m2- Konvektor fűtés- Szobák száma: 4- Telekméret: 3200 m2- Elhelyezkedés: Baranya megye, Cún (Ormánság régió)Baranya megye festői Ormánság részén, Cún településen kínáljuk eladásra ezt a kiváló adottságokkal rendelkező, önálló, téglaépítésű családi házat. A 110 m2-es ingatlan összesen 4 tágas szobával rendelkezik, így tökéletes választás családosok számára. A házhoz hatalmas, 3200 m2-es telek tartozik, mely kiváló lehetőséget biztosít gazdálkodásra, kertészkedésre vagy állattartásra. A csendes, nyugodt környezet ideális mindazoknak, akik a természet közelségében, kis falusi hangulatban szeretnének élni, mégis könnyen elérhető távolságban a megyeszékhelytől.A megtekintéshez időpontot telefonon és üzenetben is tudsz egyeztetni! Most is! :)Teljes körű pénzügyi megoldások ügyintézése díjmentesen.Minden élethelyzetre végzünk pénzügyi elemzést - ha vásárolni szeretne, segítünk, hogy ezt a legjobb feltételek mellett tegye; ha eladni szeretné ingatlanát, nézzük meg, hátha érdemes meglévő hitelét átváltani.Keressen bizalommal, szakértők vagyunk!
További adatok
Telekterület: 3 215 m2
Kert mérete: 3 215 m2
Erkély mérete: -
Felszereltség: -
Parkolás: -
Kilátás: -
Egyéb extrák:  
-
Hirdető adatai
Hirdető neve: Otthon Centrum
Hirdető telefonszáma: +36 70 388 6071