Budapest, VI.kerület
 

Ingatlan adatai
Irányár: 267 784 000 Ft
Típus: lakás (tégla)
Kategória: eladó
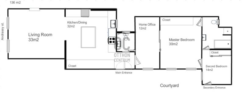
Alapterület: 136 m2
Fűtés: gáz (cirko)
Állapota: -
Szobák száma: 4
Építés éve: -
Szintek száma: -
Részletes leírás
Képzelje el, hogy egy exkluzív belvárosi lakásban él, ahol minden nap a város pezsgése és a kultúra középpontjában töltheti az idejét.Az Ön figyelmébe ajánljuk ezt a kiváló állapotú, 136 négyzetméteres, 3 szobás lakást Budapest 06. kerületének szívében, amely ideális választás azok számára, akik értékelik a kényelmet és a stílust. Operaház közelében, Andrássy úton, liftes, patinás épületben, 2. emeleti, utcára néző, igényesen felújított lakás.nappali 33 m2, Andrássy útra néző ablakokkal,konyha-étkező 32 m2,3 szoba ( jelenleg háló, dolgozó és gardróbként funkcionálnak ) ablakai udvarra néznek, nincs előttük függőfolyosó,a fürdőben kád és épített zuhany is van.A lakás klimatizált, fűtése gáz cirkó.Ajánlom otthonnak, befektetésnek.
További adatok
Telekterület: -
Kert mérete: -
Erkély mérete: -
Felszereltség: -
Parkolás: -
Kilátás: utcai
Egyéb extrák:  
-
Hirdető adatai
Hirdető neve: Otthon Centrum
Hirdető telefonszáma: +36 70 716 9196