Baranya megye, Pécs
 

Ingatlan adatai
Irányár: 69 990 000 Ft
Típus: lakás (panel)
Kategória: eladó
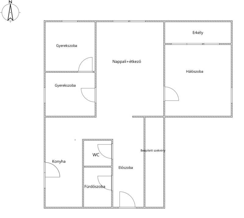
Alapterület: 74 m2
Fűtés: távfűtés
Állapota: -
Szobák száma: 4
Építés éve: 1985
Szintek száma: -
Részletes leírás
Pécsett a belváros peremén a vásárcsarnoknál átalakított négy szobás lakás várja új tulajdonosát!Az átalakításkor a gyerekekre fókuszálva, két gyerekszoba lett kialakítva, egy szülői háló, és egy nagy étkező, nappali.A konyha és a fürdőszoba modern, praktikus kialakítású.A nyílászárók fából vannak, cseréjük tervezve volt, de ez már az új lakókra marad.A tágas, minden szempontból élhető, praktikus lakást ajánlom családosoknak.Lokáció kiváló, belváros két perc, Árkád, vásárcsarnok.....minden egy perc távolságra....Nézze meg álmai otthonát!Befektetőknek is ajánlom, hiszen fekvése miatt jól kiadható.H506756
További adatok
Telekterület: -
Kert mérete: -
Erkély mérete: 4 m2
Felszereltség: -
Parkolás: -
Kilátás: utcai
Egyéb extrák:  
-
Hirdető adatai
Hirdető neve: Otthon Centrum
Hirdető telefonszáma: +36 70 461 9226