Pest megye, Dunaharaszti
 

Ingatlan adatai
Irányár: 183 750 000 Ft
Típus: ház
Kategória: eladó
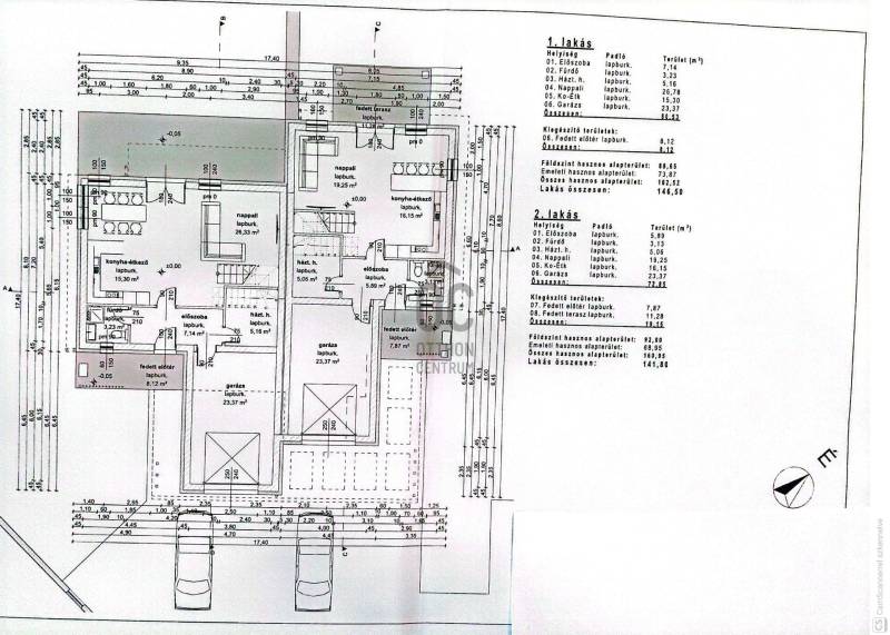
Alapterület: 147 m2
Fűtés: -
Állapota: új
Szobák száma: 4
Építés éve: 2025
Szintek száma: -
Részletes leírás
Exkluzív vízparti ikerház Dunaharaszti Tópark Lakóparkban – otthon és nyaralás egyben!Képek és tervező által készített alaprajz hamarosan feltöltésre kerül.Eladó Dunaharaszti legnívósabb lakóparkjában, a Tópark Lakóparkban, egy 147 m²-es, 4 szobás, kétszintes luxus ikerház, 350 m²-es saját telekkel. A tópart közelsége és a lakópark kiemelkedő szolgáltatásai különleges életérzést biztosítanak: itt egyszerre élvezheti az otthon nyugalmát és egy üdülőhely minden előnyét!Az ingatlan főbb jellemzőiModern, porotherm tégla falazat + 15 cm hőszigetelés, nemesvakolat homlokzatMonolit födém, lapostetős kialakítás, antracit színű állókorcos lemezfedés3 rétegű, antracit színű nyílászárók, elektromos alumínium redőnyökkelMotoros, hőszigetelt garázskapu, két távirányítóval4 tágas szoba, amerikai konyhás nappali, 2 fürdőszoba, erkély és teraszHőszivattyús fűtés-hűtés rendszer: padlófűtés és mennyezeti hűtés minden lakótérbenElektromos törölközőszárító radiátor, épített zuhany, Ravak kádOkosház előkészítés – redőnyvezérlés, világítás, fűtés-hűtés mobilról irányíthatóKültéri és beltéri burkolatok, szaniterek a vevő igényei szerint választhatók A lakópark különlegességei:Zárt, biztonságos környezet – sorompós beléptető rendszer, portaszolgálat és 24 órás járőrszolgálatSaját strand 200 méterre az ingatlantólTiszta vizű tó, amely úszásra és vízi sportokra is alkalmasVízisípálya és jet-ski tó a lakópark területénSportolási lehetőségek: szabadtéri kondipark, futópálya, teniszpálya, futballpályaJátszótér és közösségi terek a család minden tagjánakÉtterem és kávézó a lakóparkon belül Kiváló infrastruktúra:Bevásárlási lehetőségek közvetlen közelben: Aldi, Lidl, Tesco, DM, Jysk, KFC és sok másBudapest az M0-ásnak köszönhetően pár perc alatt elérhetőEz az ingatlan nem csupán egy otthon, hanem egy életstílus: biztonság, nyugalom, luxus és vízparti élmények egy helyen. Rugalmasan megtekinthető – ne hagyja ki ezt az egyedülálló lehetőséget!
További adatok
Telekterület: 350 m2
Kert mérete: 350 m2
Erkély mérete: -
Felszereltség: -
Parkolás: -
Kilátás: -
Egyéb extrák:  
-
Hirdető adatai
Hirdető neve: Otthon Centrum
Hirdető telefonszáma: +36 70 465 7056