Vas megye, Kőszegszerdahely
 

Ingatlan adatai
Irányár: 225 000 Ft/hó
Típus: ház
Kategória: kiadó
Alapterület: 65 m2
Fűtés: elektromos
Állapota: -
Szobák száma: 3
Építés éve: 2023
Szintek száma: -
Részletes leírás
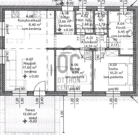
Béreljen otthont Vas megye gyönyörű városában, Kőszegszerdahelyen - 2 szobás ház várja Önt!Fiatal felnőttek figyelem! Keresed az ideális otthont, ahol élvezheted a csendet és nyugalmat, de egyben élénk városi életet is? Akkor itt a lehetőség! Kőszegszerdahelyen, található ez a br.70 nm-es, 2 szobás, kitűnő állapotú ház, amely kiváló lehetőséget kínál a bérlők számára. Az ingatlan magában foglalja a beépített bútorokat és szekrényeket, motoros redőnyöket, valamint egy 10 nm-es teraszt, amelyről csodálatos kilátás nyílik a kertre. Az infra fűtésnek köszönhetően a lakás rendkívül gazdaságos és kényelmes. Parkolás telken belül kialakított közös parkolóban megoldott. A környék rendkívül csendes és biztonságos. Az ingatlan közelében találhatóak azok a közlekedési lehetőségek, amelyekkel könnyedén elérhető az osztrák határ, Kőszeg 5 km-re, Szombathely 17 km-re található.Az ingatlan minimum egy évre bérelhető, 3 havi kaució szükséges.KISállat egyedi megbeszélés alapján hozható.Bérleti díj: 225.000 Ft+ rezsi( víz, villany fogyasztás alapján, közös költség)
További adatok
Telekterület: 340 m2
Kert mérete: 340 m2
Erkély mérete: 10 m2
Felszereltség: -
Parkolás: -
Kilátás: -
Egyéb extrák:  
-
Hirdető adatai
Hirdető neve: Otthon Centrum
Hirdető telefonszáma: +36 70 412 5241