Budapest, IV.kerület
 

Ingatlan adatai
Irányár: 94 900 000 Ft
Típus: lakás (tégla)
Kategória: eladó
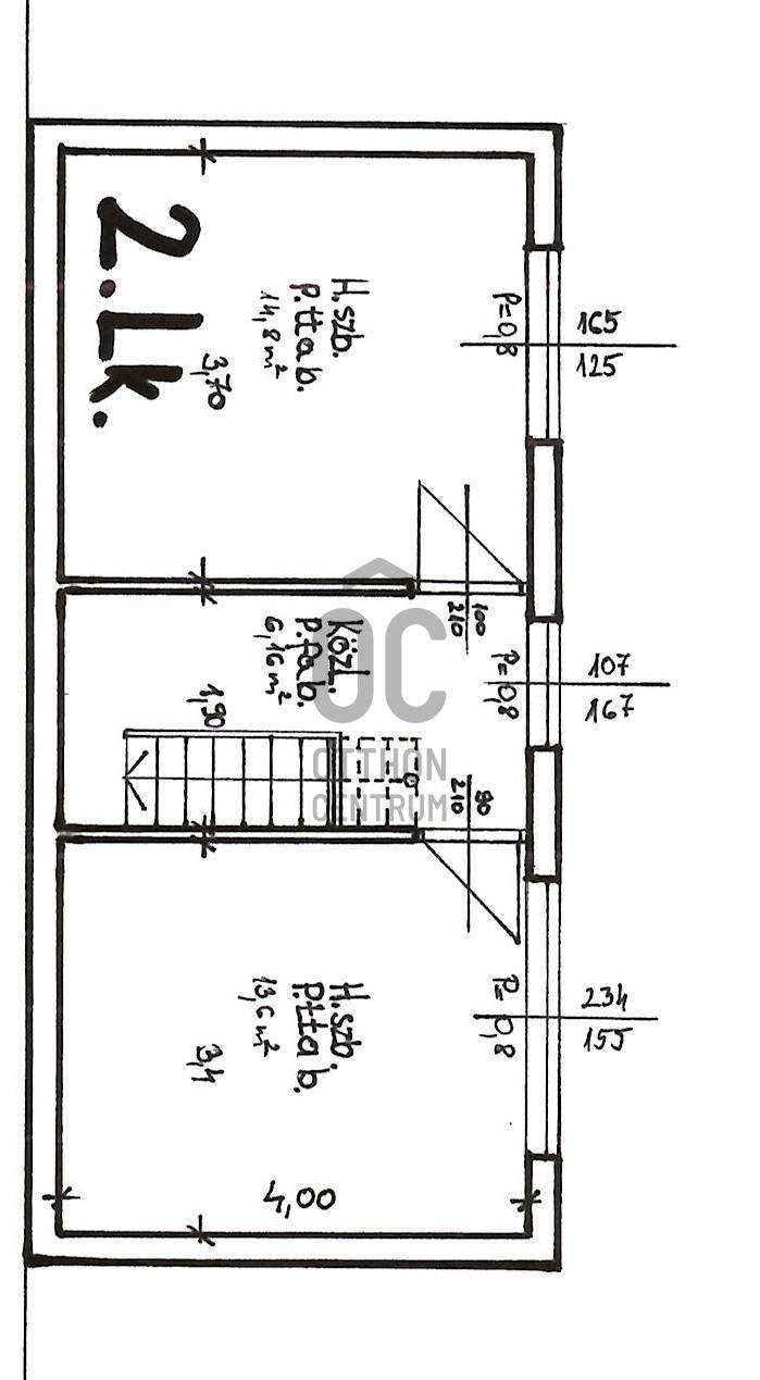
Alapterület: 80 m2
Fűtés: gáz (cirko)
Állapota: -
Szobák száma: 3
Építés éve: 1970
Szintek száma: -
Részletes leírás
Budapest IV kerület zöld övezetében, eladó teljesen felújított belső kétszintes társasházi lakás, kertkapcsolattal.A lakás egy háromlakásos társasházban helyezkedik elOsztatlan közös tulajdon, ügyvédi megosztással.-A ház 1970 -es években készült.-Tégla építésű-2025 első félévében a teljes homlokzat 8 cm-es grafit szigetelést és színezést kapott.Egy emeleti, egy földszintes és egy belső két szintes lakás helyezkedik el a házban.A telek 602 nmMinden lakásnak, külön tároló része és kert része van, melyet a használati megosztás szabályoz.Lakásonként 1-1 autó beállására van lehetőség.Elektromos kapu az autók beállására, külön kapu a gyalogos bejárásra.Minden mérő óra lakásonként külön-különLAKÁS:- nettó 80 nm- 2025 - ben teljesen felújítva- nappali-konyha, két szoba, valamint egy fürdőszoba és egy háztartási helyiség lett kialakítva a lakásba.- Nappali déli fekvésű, kertre néz- terasz 20 nm-teljes körű burkolat csere,- frissen festett falak- korszerű műanyag nyílászárók lettek beépítve minden helyiségbe, ALUMÍNIUM REDŐNNYEL- új vízvezeték, új villanyvezeték a falban- új szennyvízelvezetés- újból lett megtervezve, engedélyeztetve és beszerelve a kondenzációs gáz kazán, ehhez teljesen új kémény lett kiépítve .- radiátoros fűtés az aljzatba elvezetve- fürdőszoba tágas, kádas, WC-vel, mosdóval- 1 gépjármű beállására lehetőség- kb. 100 nm önálló kertrész- azonnal költözhető - a fűtésről és meleg víz ellátásáról minőségi ARISTON gázkazán gondoskodik bluetooth eléréssel, - hideg- és meleg minőségi gres lap burkolatok a fürdőszobában és a konyhában,- a szobák hűtő fűtő klímával felszereltek- a ház grafit 8 cm szigetelést kapott, új színezéssel, vakolattalKÖRNYEZET:- csendes kertvárosi környezet- jó tömegközlekedés, buszmegálló 100-150 méteren belül- ingyenes parkolás az utcában- kedves lakóközösség- iskola, óvoda néhány utcára
További adatok
Telekterület: -
Kert mérete: -
Erkély mérete: 15 m2
Felszereltség: -
Parkolás: -
Kilátás: kertre néző
Egyéb extrák:  
-
Hirdető adatai
Hirdető neve: Otthon Centrum
Hirdető telefonszáma: +36 70 716 8491