Hajdú-Bihar megye, Debrecen
 

Ingatlan adatai
Irányár: 116 900 000 Ft
Típus: ház
Kategória: eladó
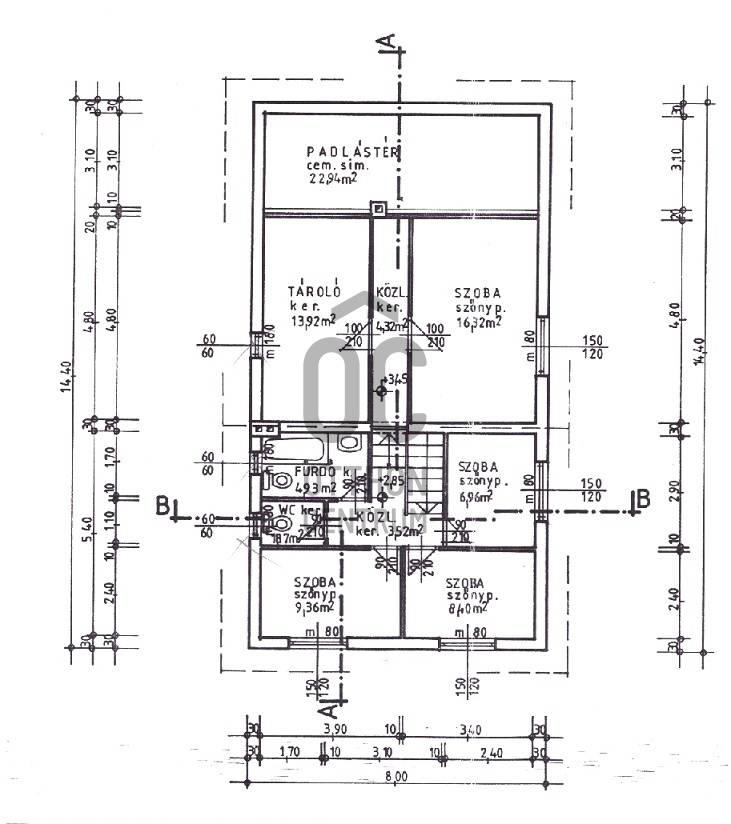
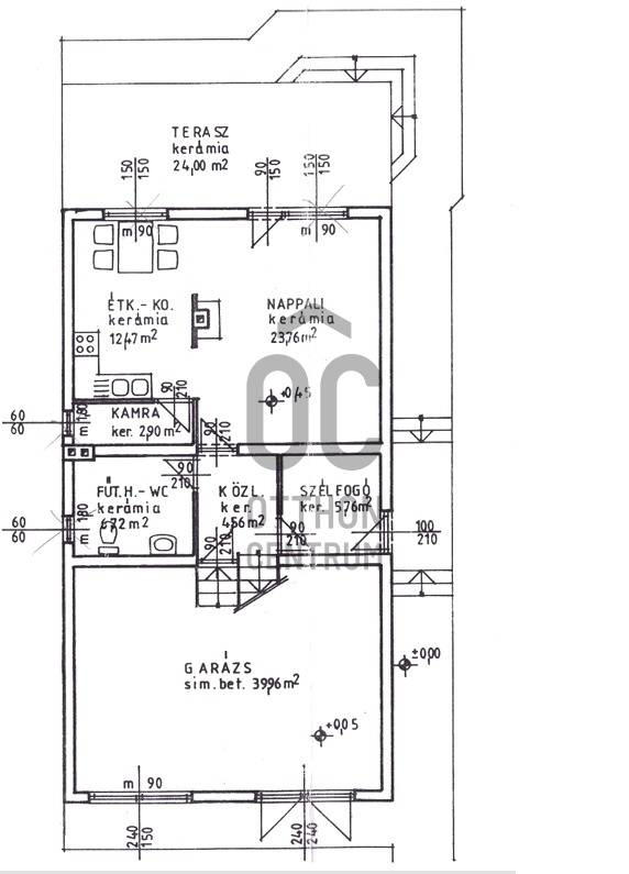
Alapterület: 180 m2
Fűtés: gáz (cirko)
Állapota: -
Szobák száma: 6
Építés éve: 1992
Szintek száma: -
Részletes leírás
Debrecen Józsán eladó egy 1992-ben épült, nappali-étkező-konyha + 5 szobás, eltolt szintes, részben felújított, 180 m2 nettó alapterületű, önálló családi ház, a hozzá tartozó engedéllyel tervrajzokkal rendelkező, 83 m2-es különálló műhellyel együtt, az alábbi paraméterekkel:- A ház néhány évvel ezelőtt teljes körű villamoshálózati felújításon és fűtéskorszerűsítésen esett keresztül, melyek keretében az összes villamosvezetéket kicserélték, új biztosítókat és megszakítókat szereltek be, új kondenzációs kazán került beépítésre, természetesen a kémény törvényi előírásoknak megfelelő átalakításával. A hőleadókat is modern alumínium radiátorokra cserélték. Ebből fakadóan a fűtési költségek alacsonyan tarthatók.- A villamossági felújítás során külön mérőórát szereltek be a műhely áramfogyasztásának mérésére.- A lakóház és a műhely gázellátása is külön gázórákon keresztül történik, mindkét ingatlanban kondenzációs kazán működik.- A korábbi nyílászárókat műanyagra cserélték (redőnyökkel, rovarhálókkal).- Az utcafronti garázs helyén jelenleg egy iroda van kialakítva, amit igény szerint vissza lehet alakítani.- A gépkocsik tárolását jelenleg 4 fedett beálló biztosítja a telken belül, míg további 4 nyitott beálló is rendelkezésre áll.- Az udvar parkosított, a fúrt kútról öntözhető kertben örökzöldek, gyümölcsfák, konyhakerti növények (fóliasátorban) találhatók.- A kerten kívüli terület teljes mértékben térkövezett.- A fedett terasz 28 m2.- Az épület földszintjén található fürdőszoba WC-vel szerelt, épített zuhanyzóval és káddal van ellátva és egy különálló második WC is helyet kapott.- Az emeleti részen további 2 fürdőszoba került kiépítésre, ezek közül az egyikben WC-kád-mosdó, a másikban zuhanyzó és mosdó került beépítésre.- Az 5 külön nyíló szoba kiváló lehetőséget biztosít több gyermek külön elhelyezésére, valamint dolgozó- vagy vendégszoba kialakítására is.A ház kiváló otthona lehet olyan családoknak, akik több szobát és otthoni vállalkozást is szeretnének egy ingatlanon belül tudni, nagyon széleskörűen hasznosítható.CSOK+, babaváró, Otthon Start Program akár kombinálva is felhasználható. További részletekért várjuk hívását a hét minden napján!
További adatok
Telekterület: 1 000 m2
Kert mérete: 1 000 m2
Erkély mérete: 28 m2
Felszereltség: -
Parkolás: -
Kilátás: -
Egyéb extrák:  
-
Hirdető adatai
Hirdető neve: Otthon Centrum
Hirdető telefonszáma: +36 70 388 5731