Veszprém megye, Balatonakarattya
 

Ingatlan adatai
Irányár: 229 000 000 Ft
Típus: lakás (újépítésű)
Kategória: eladó
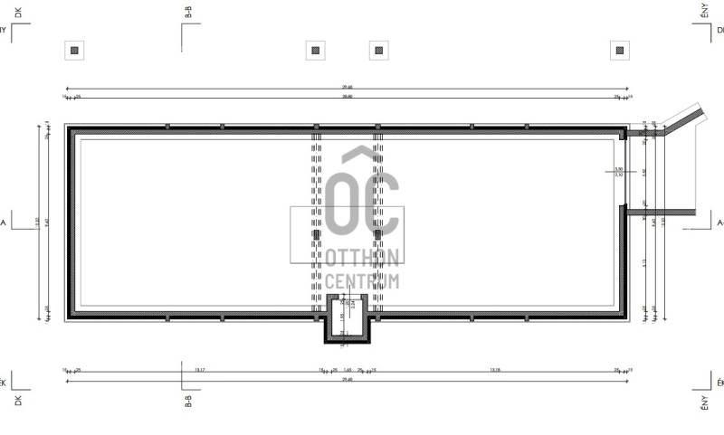
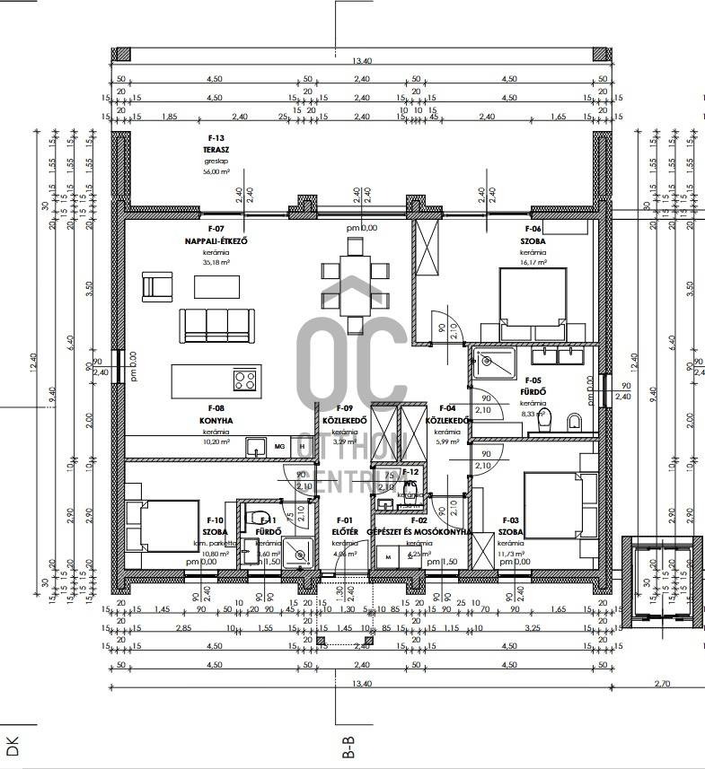
Alapterület: 128 m2
Fűtés: -
Állapota: új
Szobák száma: 4
Építés éve: 2026
Szintek száma: -
Részletes leírás
Ez az ingatlan hirdetés kifejezetten azoknak az időseknek szól, akik a kényelmet és a prémium életszínvonalat keresik. A figyelemre méltó, új lakás, amelynek alapterülete 110 nm, egy igazi gyöngyszem a piacon. A tágas nappali és a konyhaszigetes amerikai konyha ideális teret biztosít a családi összejövetelekhez és a baráti találkozókhoz. A lakásban három hálószoba található, így bőven van hely a vendégek fogadására is. Két fürdőszobával rendelkezik, ami különösen praktikus lehet a nagyobb családok számára. A terasz, amely 36 nm-es, csodás tóra néző kilátással büszkélkedik, tökéletes helyszín a reggeli kávézásra vagy a naplemente élvezésére. Az ingatlan állapota kiváló, a prémium kivitelezés pedig garantálja a hosszú távú megelégedettséget. A hőszivattyús fűtés és hűtés modern kényelmet nyújt, miközben az elektromos autó töltés lehetősége is adott, így a környezettudatos életmódot követők számára ideális választás. A lakás akadálymentesített, így minden korosztály számára könnyen megközelíthető, és az integrált szúnyoghálóval, valamint motoros redőnyökkel felszerelt ablakokkal a kényelmet és a biztonságot szolgálja. A kertkapcsolatos lakásban egyedi tervezésű kandalló is található, amely a hideg téli estéken otthonos hangulatot teremt. Az automata öntözőrendszer pedig a kert karbantartását egyszerűsíti, így több időt tölthetsz a pihenéssel. A környék csendes és biztonságos, ideális helyszín a nyugodt életvitelhez. A közlekedési lehetőségek is kiválóak, hiszen a közelben található buszmegállók és vonatállomások gyors elérhetőséget biztosítanak a város központjához. A közeli boltok, gyógyszertárak és orvosi rendelők pedig megkönnyítik a mindennapi életet. Ez az ingatlan nemcsak egy új otthon, hanem egy életstílus is, amely a kényelmet és a biztonságot helyezi előtérbe. Ha bármilyen kérdésed van, vagy szeretnéd megtekinteni ezt a különleges lakást, bátran keresd fel a megadott elérhetőségeken. Bizalommal várjuk a megkeresésedet!Projekt bemutatásaBalatonakarattya magaspartján -fantasztikus panorámával– Új építésű luxuslakások eladókBalatonakarattya egyik legszebb részén, kínálunk eladásra az Admirál projektek fejlesztőjétől 2 villaépületben összesen 4 exkluzív lakást 108-128m2 méretben, 2700m2-es telken.Az új építésű ingatlanok minden részletükben a letisztult modern luxust és a kényelmet képviselik.A lakások főbb jellemzői:Tágas elrendezés: Nappali, 3 hálószoba, 2 fürdőszoba, gardrób, mosókonyhaPrémium minőségű burkolatok és beépített anyagokModern, lakásonként önálló hőszivattyús hűtés-fűtés rendszerOkos otthon megoldások, alu nyílászárókkal és motoros zipscreen árnyékolássalLiftes mélygarázsban lakásonként 2 autó áll rendelkezésre külön ár megfizetése mellett, az autó beállók vételára a garázsszinti tárolót is tartalmazzaParkosított, lakásonként 100-200m2 kizárólagos használatú kertrészek, teljesen automatizált öntözőrendszerrelGondosan kialakított, igényesen parkosított környezetEzek a lakások nem csupán otthonok, hanem valódi életterek, ahol a modern technológia, a luxus és az elvehetetlen balatoni panoráma találkozik.Vételár: 229-250 MFt 2-2 db mélygarázs hely is vásárolható a lakásokhoz zárt tárolóval!
További adatok
Telekterület: -
Kert mérete: -
Erkély mérete: 36 m2
Felszereltség: -
Parkolás: -
Kilátás: kertre néző
Egyéb extrák:  
-
Hirdető adatai
Hirdető neve: Otthon Centrum
Hirdető telefonszáma: +36 70 388 5131