Budapest, XVI.kerület
 

Ingatlan adatai
Irányár: 249 900 000 Ft
Típus: ház
Kategória: eladó
Alapterület: 320 m2
Fűtés: -
Állapota: -
Szobák száma: 7
Építés éve: 2000
Szintek száma: -
Részletes leírás
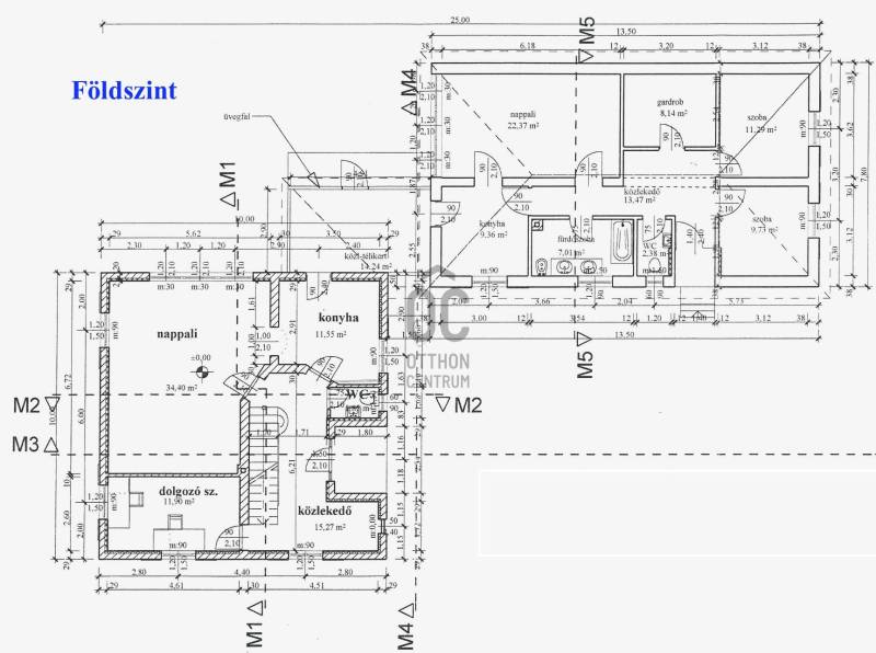
Budapest 16. kerületében, Rákosszentmihály csendes, biztonságos részén 2 külön bejáratú épületből álló ingatlan eladó, amely ideális választás családi otthon és üzleti vállalkozások számára is. A 320 nm-es alapterülettel rendelkező ingatlan 1082 nm-es, sík telken helyezkedik el. Mindkét épület a korábbi, svájci tulajdonos által magas precizitással megépített, szerkezetileg kifogástalan és időtálló állapotban várja új tulajdonosát. Az ingatlan elrendezése rendkívül praktikus, kiválóan alkalmas nagyobb családok, vagy akár több generáció együttélésére, illetve vállalkozás működtetésére is. Az épületek falazata kívül-belül hőszigetelt (10 cm Nikecell, 38 cm tégla, 5 cm kőzetgyapot, hő-és párazáró fólia, 2,5 cm falemez). Fűtéséről és a melegvízről megbízható, karbantartott Vaillant gázkazán gondoskodik. Elektromos hálózat: 3*25A + H-Tarifa, 3*10A a klímákhoz. Rezsi: a víz-gáz-villanyra az elmúlt év átlagát tekintve összesen 30.000Ft/hó.A 223 nm-es, 3 szintes épület jellemzői:-Porotherm falazó elem betongerendás födémmel-minőségi Bramac cseréptető-kétrétegű üvegezett, fa nyílászárók-a földszinten 80 nm lakótér (nappali, dolgozó- vagy hálószoba, külön konyha, wc kézmosóval, előszoba elosztású)-az emelet nettó 63 nm (3 külön nyíló hálószoba, fürdőszoba).A szuterén szint jellemzői:-80 nm-en éléskamra, mosókonyha/gépészet, jelenleg műhely, szoba-természetes fényt is kap és jól szellőztethető-fűthető, klimatizált és körbejárható A 97 nm-es, különálló épület jellemzői:-külön bejárat
 -fafödémes szerkezet-minőségi Bramac cseréptető-jól szigetelő, műanyag nyílászárók-modern fűtési-hűtési rendszer-közmű fogyasztás almérő szerint-tágas, teraszra néző nappali-padlófűtés, radiátor és korszerű klímák.Kert, udvar:-2 férőhelyes, téglaépítésű garázs (30 nm), távvezérelt kapuval -15 nm-es tároló kerti szerszámoknak-térkövezett kocsibeálló -automata csepegtetőrendszer és öntöző almérővel ellátva-ásott kút -veteményes kert, fiatal gyümölcsfák bőséges terméssel.Környék:Csendes utcák, újszerű és karbantartott családi házak nagy kertekkel, egyre több fiatal családdal. Összetartó és jól szituált lakóközösség jellemzi a környéket.M0 autópálya alig 20 kmVásárlás:Pólus, Ázsia Center , Lidl kb. 5 percre van autóvalRekreáció: uszoda, teniszpálya, edzőterem, Szilas-patak kerékpár útIskolák, óvodákAz ingatlan rövid időn belül költözhető, tehermentes.
Átépítési igény esetén rendelkezésre áll egy díjnyertes tervező által készített koncepcióterv is. Bővebb információ vagy megtekintés esetén várom hívását.Ez az ingatlan a \"Hűség csomag\" megbízási portfólióhoz tartozik. Részletek az Otthon Centrum weboldalán.
További adatok
Telekterület: 1 082 m2
Kert mérete: 1 082 m2
Erkély mérete: 21 m2
Felszereltség: -
Parkolás: -
Kilátás: -
Egyéb extrák:  
-
Hirdető adatai
Hirdető neve: Otthon Centrum
Hirdető telefonszáma: +36 70 461 9766