Szabolcs-Szatmár-Bereg megye, Nyíregyháza
 

Ingatlan adatai
Irányár: 51 790 000 Ft
Típus: lakás (újépítésű)
Kategória: eladó
Alapterület: 49 m2
Fűtés: gáz (cirko)
Állapota: új
Szobák száma: 2
Építés éve: 2026
Szintek száma: -
Részletes leírás
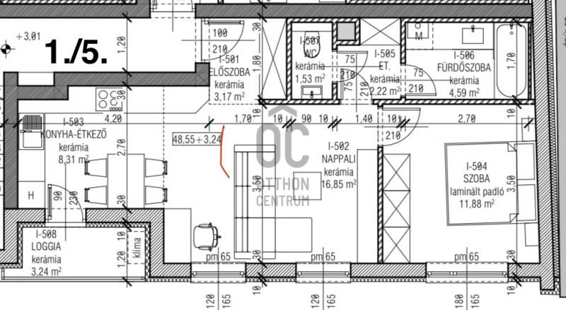
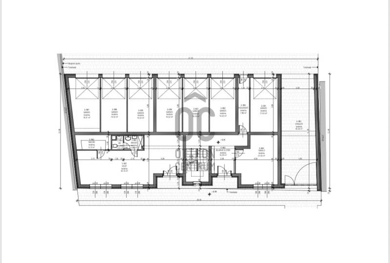
Eladó 1 szobás, tágas amerikai konyhás nappalival rendelkező lakás, külön fürdőszobával és WC-vel. Minden lakáshoz saját erkély tartozik, amely kellemes kikapcsolódást nyújt. A szobákban laminált parketta, míg a többi helyiségben járólap burkolat található. A földszinten közös tároló áll a lakók rendelkezésére, az udvar közösen használható. Garázs és udvari gépkocsibeálló külön megvásárolható. Ideális választás pároknak vagy befektetés céljára is.Projekt bemutatásaÚj építésű, amerikai konyhás, 1 szobás lakások eladók Nyíregyháza belvárosában, a Hatzel tér közelében! A 10 lakásos társasház csendes utcában épül, erkélyes lakásokkal, garázs- és udvari beálló lehetőséggel. 30-as szigetelés, 3 rétegű nyílászárók, padlófűtés, klíma – minden adott a modern élethez. Átadás: 2026 nyár. Foglaljon időben!Garázs: 10.000.000 Ft Udvari beálló: 3.000.000 Ft1.emelet1.lakás: 49,66 nm + 3,60 nm erkély2.lakás: 48,16 nm + 3,60 nm erkély3.lakás 46,39 nm + 3,60 nm erkély4.lakás 48,29 nm + 3,24 nm loggia ELKELT!5.lakás 48,55 nm + 3,24 nm loggia 2. emelet1.lakás: 49,66 nm+ 3,60 nm erkély2.lakás: 48,16 nm + 3,60 nm erkély3.lakás: 46,39 nm + 3,60 nm erkély4.lakás: 45,61 nm + 3,24 nm loggia5.lakás: 45,63 nm + 3,24 nm loggia
További adatok
Telekterület: -
Kert mérete: -
Erkély mérete: 3 m2
Felszereltség: -
Parkolás: -
Kilátás: utcai
Egyéb extrák:  
-
Hirdető adatai
Hirdető neve: Otthon Centrum
Hirdető telefonszáma: +36 70 412 3031