Budapest, XIV.kerület
 

Ingatlan adatai
Irányár: 105 000 000 Ft
Típus: lakás (újépítésű)
Kategória: eladó
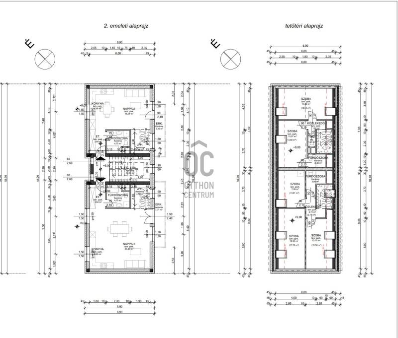
Alapterület: 89 m2
Fűtés: -
Állapota: új
Szobák száma: 4
Építés éve: 2024
Szintek száma: -
Részletes leírás
ALSÓRÁKOS kedvelt utcájában ELADÓ egy 88 m2-es, BELSŐ KÉTSZINTES újépítésű lakás.A tégla építésű ház 5 lakása a XIV kerületben, társasházi, zöldövezeti környezetben épült. Már az összes lakás elkelt. Ablakos kialakítású zárt lépcsőház. A társasházhoz biciklitároló került kiépítésre. A Rákos -patak a közelben található, mert mindössze 5-8 perc séta, ami ideális biciklizésre, kocogásra, sétálásra, kutyasétáltatásra.Az UTOLSÓ eladó lakás paraméterei:-nettó 88,79 m2 (bruttó: 103,73 m2)-belmagasság: 260 m- műanyag nyílászárók-hőszivattyú (hűtő-fűtő)-klíma-hidegburkolat választható-melegburkolat (parketta)választható-szaniterek-riasztó kiállás előkészített verzió-fedett kocsibeálló (A meghirdetett vételár a gépkocsi beálló árát is tartalmazza!)Az épületről:-elektromos kapu-zárt lépcsőház nyitható ablakokkal-biciklitároló-kukatároló-gépkocsi beállókA vételár NEM TARTALMAZ konyhabútort!!Műszaki paraméterek: alapozás: -minőségi betontalajnedvesség elleni szigetelés: -CV4 jelű 4,0 mm vastag bitumenes szigetelőlemez + PORMEX RAPIDjárda: -kavics ágyon, beton, cement és bitumen az előírt technológiával elkészítvegépkocsi behajtó: -térkő burkolás jogszabálynak megfelelőenfalazat: PHOROTHERM 30 N+ F blokktéglafödém: hagyományos szerkezetű fagerenda + gipszkarton burkolattetőszerkezet (45 fokos):-téglavörös színű betoncserép szigetelés : -külső falon 15 cm -es EPSesővíz elvezetés: - ereszcsatorna, szürke bádogból (ereszkinyúlás 20 cm)nyílászárók:-fehér műanyag ablakok-belső falak festése: fehér műanyag bázisú falfestés-külső felület színezése: Dryvit rendszerű fehér és dióbarna illetve lábazaton sötétbarna homlokzatvakolat,burkolatok: parketta, kerámialapKözelben lévő létesítmények:-élelmiszer boltok, kifőzde, étterem, kávézó, iskola, óvoda, piac (kocsival 8 perc), fogászati centrum, strandfürdő, cukrászdák- Közlekedés és tömegközlekedés:-3, 62, 62A villamos, 32 -es busz (Örs vezér tere (Árkád, Sugár, IKEA 15 perc)-77 troli (Egressy tér -től Puskás stadion 2-es metro felé)Ajánlom családoknak vagy befektetőknek.Egyedi igényekre szabott lakáshitelekkel állunk rendelkezésére.Bankfüggetlen Hitel Centrumunk az országban elérhető összes bank és hitelintézet ajánlatát versenyezteti az Ön számára díjmentesen. Munkatársaink nagy szakmai tapasztalattal várják Önt az előre egyeztetett időpontban akár a normál munkaidő után is.Bővebb információért és a megtekintéssel kapcsolatban hívjon bizalommal!
További adatok
Telekterület: -
Kert mérete: -
Erkély mérete: 7 m2
Felszereltség: -
Parkolás: -
Kilátás: udvari
Egyéb extrák:  
-
Hirdető adatai
Hirdető neve: Otthon Centrum
Hirdető telefonszáma: +36 70 469 3831