Hajdú-Bihar megye, Hajdúböszörmény
 

Ingatlan adatai
Irányár: 65 200 000 Ft
Típus: lakás (újépítésű)
Kategória: eladó
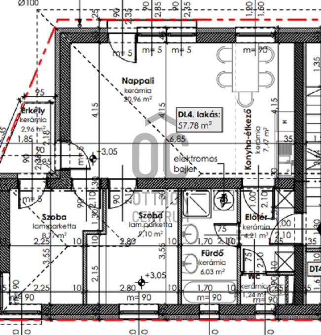
Alapterület: 58 m2
Fűtés: -
Állapota: új
Szobák száma: 3
Építés éve: 2023
Szintek száma: -
Részletes leírás
Hajdúböszörmény Belvárosában, 57.78 nm-es, 3-om szobás, korszerű, család barát, magas műszaki tartalommal rendelkező társasházi lakás eladó.Az ingatlan jellemzői:- Magas műszaki tartalommal és hozzáértő kivitelezéssel készült- 3 rétegű, 6 légkamrás, prémium minőségű műanyag nyílászárók kerültek beépítésre- Hőszivattyús fűtési rendszer biztosítja a lakás fűtését, hűtését, mennyezeti hűtés és padlófűtés van- Prémium minőségi burkolatok és szaniterek választhatók- Riasztóval ellátott- A lakásokhoz egy 3 nm-es erkély tartozik- A bejáratnál kamera található- Füvesített, parkosított zöld területek- Családbarát lakópark / kisgyerekesek számára saját játszótér /.A magas műszaki tartalomnak és korszerű energiatakarékos megoldásoknak köszönhetően nagyon alacsony a fenntartása a lakásnak.A lakáshoz tartozik egy 4.03 nm-es tároló, melynek ára 2.200.000.- Ft.Lehetőség van felszíni beálló vagy garázs vásárlásra.Amennyiben felkeltette érdeklődését győződjön meg személyesen a lakás egyediségéről, keressen bizalommal!
További adatok
Telekterület: -
Kert mérete: -
Erkély mérete: 3 m2
Felszereltség: -
Parkolás: -
Kilátás: kertre néző
Egyéb extrák:  
-
Hirdető adatai
Hirdető neve: Otthon Centrum
Hirdető telefonszáma: +36 70 461 9281