Tolna megye, Szekszárd
 

Ingatlan adatai
Irányár: 59 500 000 Ft
Típus: lakás (tégla)
Kategória: eladó
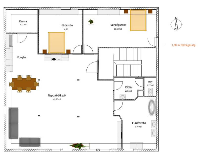
Alapterület: 84 m2
Fűtés: gáz (cirko)
Állapota: -
Szobák száma: 3
Építés éve: 1994
Szintek száma: -
Részletes leírás
Ideális választás lehet családok, vagy akár első lakásvásárlók számára is. A tágas, 84 négyzetméteres, klimatizált lakásban a nappali, étkező, konyha egy térben található, így bőséges teret biztosít családja, vagy a baráti összejövetelek számára.Ezen felül 2 további szoba biztosítja a család kényelmét.Az ingatlan állapota kiváló, a modern, amerikai konyhás elrendezés a kényelmet és a stílust ötvözi.A konyha, a tágas fürdő és mosdó járólappal fedett, a szobákban és a közösségi térben új laminált burkolat található.A lakás padlófűtéses, fűtése gáz cirkó kazánnal üzemel, a nyári hónapokban pedig a klíma biztosítja a kellemes hőmérsékletet.A tetőtér Rockwool szigetelőrendszerrel (25 cm vastagságban) ellátott, mely alatt tűzálló gipszkarton található. Zárt lépcsőházból érhető el, önálló riasztó rendszerrel védett.Az ingatlan tehermentes, azonnal birtokba vehető.A környék ellátottsága kiváló, hiszen a városközpont közelsége minden szükséges szolgáltatást elérhetővé tesz. Bolt, iskola, orvosi rendelő és szórakozási lehetőségek mind pár perc sétára találhatóak. A közlekedés is kitűnő, hiszen a tömegközlekedési megállók közvetlenül a közelben helyezkednek el, így könnyedén elérheti a város többi részét, valamint a környező településeket is. Az ingatlan csendes, biztonságos környéken található, ahol a szomszédság barátságos és rendezett. Ez a lakás nemcsak egy új otthon, hanem egy kiváló befektetési lehetőség is, hiszen a belvárosi elhelyezkedés és a folyamatosan növekvő kereslet garantálja az értékállóságot. Ne habozzon, ha kérdései lennének, vagy szeretné megtekinteni ezt a páratlan ingatlant, bizalommal kereshet minket. Az ingatlanpiac dinamikusan változik, így érdemes mihamarabb lépni, hogy ne maradjon le erről a remek lehetőségről!Kedves Ügyfelünk, az ingatlanról videót is készítettünk. Ha ezt a hirdetést az Otthon Centrum weboldalán nézi, akkor a videóra a képek után tud kattintani. Ha egy másik weboldalon találta ezt a hirdetést, kérem nyissa meg az Otthon Centrum weboldalát, kattintson a „Regisztrációs szám keresése” menüpontra, és írja be ezt a regisztrációs számot a keresőbe: H505400. Itt meg tudja tekinteni az ingatlanról készült videót. Vagy írjon nekem, és szívesen elküldöm a videót.Eladó belvárosi tetőtéri lakás 2. emelet 84 m2 nappali-étkező-konyha 2 háló zárt lépcsőház riasztó, gázos, klimatizált
További adatok
Telekterület: -
Kert mérete: -
Erkély mérete: -
Felszereltség: -
Parkolás: -
Kilátás: utcai
Egyéb extrák:  
-
Hirdető adatai
Hirdető neve: Otthon Centrum
Hirdető telefonszáma: +36 70 461 9696