Vas megye, Sárvár
 

Ingatlan adatai
Irányár: 59 900 000 Ft
Típus: ház
Kategória: eladó
Alapterület: 170 m2
Fűtés: gáz (cirko)
Állapota: -
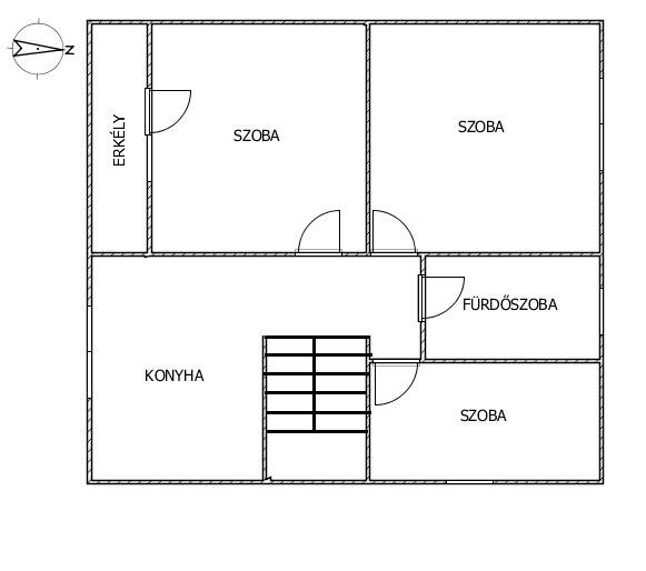
Szobák száma: 5
Építés éve: 1985
Szintek száma: -
Részletes leírás
Sárvár csendes, kertvárosi részén kínálok megvásárlásra egy tágas, 2 szintes családi házat.Az ingatlan 5 szobával és 2 fürdőszobával rendelkezik, így bőven van hely a család minden tagjának, de befektetésnek is kiváló. Az utóbbi években munkásszálló funkciót látott el.A ház állapota átlagos, így a leendő tulajdonos saját ízlésére formálhatja, hogy igazán otthonos légkört teremtsen. A szükséges felújítási munkák után, egy tágas otthona lehet, ahol mindenki megtalálhatja magának a szükséges életteret.A fűtés gáz cirko rendszerrel megoldott, amely gazdaságos és kényelmes megoldást kínál a hideg téli hónapokban. Tartozik hozzá garázs és fedett beálló, így autóját is biztonságban tudhatja. Az 529 m²-es ťelken aknás autószerelő műhely is kapott helyet, így vállalkozási célra is kitűnő lehetőség, de további gépkocsik tárolására is alkalmas. A környék biztonságos és csendes, ideális választás gyermekes családok számára. A közlekedési lehetőségek is kedvezőek, hiszen Sárvár városának központja könnyen megközelíthető autóval és tömegközlekedéssel egyaránt. A közeli buszmegállókból rendszeres járatok indulnak, így a város többi része is gyorsan elérhető. Az ingatlan közelében található iskolák, óvodák és bevásárlási lehetőségek, amelyek megkönnyítik a mindennapi életet. Így adott a lehetőség, hogy egy olyan otthonra találjon, amelyben a család minden tagja kényelmesen élhet.Az ingatlan tehermentes, gyorsan birtokba vehető.Amennyiben bármilyen kérdése merülne fel az ingatlannal, vagy a környékkel kapcsolatban, kérem, ne habozzon felkeresni. Bizalommal várjuk megkeresését, hogy segíthessünk Önnek megtalálni álmai otthonát Sárváron!Hitelre van szüksége?Az Otthon Centrum az ország egyik legnagyobb és legmegbízhatóbb hitelközvetítőjeként, teljes körű és díjmentes hitel ügyintézéssel, biztosításkötéssel áll rendelkezésére! Kérje személyre szabott ajánlatunkat Kollégáinktól!Válassza ki az Önnek legmegfelelőbbet!
További adatok
Telekterület: 529 m2
Kert mérete: 529 m2
Erkély mérete: 5 m2
Felszereltség: -
Parkolás: -
Kilátás: -
Egyéb extrák:  
-
Hirdető adatai
Hirdető neve: Otthon Centrum
Hirdető telefonszáma: +36 70 469 3666