Pest megye, Tápióság
 

Ingatlan adatai
Irányár: 64 999 000 Ft
Típus: ház
Kategória: eladó
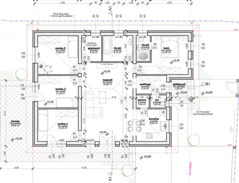
Alapterület: 115 m2
Fűtés: -
Állapota: új
Szobák száma: 5+1
Építés éve: 2025
Szintek száma: -
Részletes leírás
Tápióságon, a Kossuth Lajos utcában, egy 95 m²-es telken, önálló családi ház kerül értékesítésre, amely nettó 115m²-es hasznos lakóteret kínál. 4 hálószoba + amerikai konyhás nappali. CSOK Plusz támogatás és Falusi CSOK igényelhető!Építési és műszaki jellemzők:30-as nútféderes téglából épülő falazat.Fa födém.Antracit színű betoncserép fedés.Homlokzat: 15 cm EPS szigetelés.Padló: 10 cm Austrotherm AT-N100 hőszigetelés.Födém: 25 cm ásványgyapot szigetelés.Hat légkamrás, háromrétegű üvegezéssel ellátott nyílászárók.A fűtési rendszer hőszivattyús, padlófűtéssel kombinálva biztosítja a meleget és a melegvizet.Választható műszaki tartalom (meghatározott keretösszegen belül):Hidegburkolat: 3000 Ft/m²-ig.Melegburkolat: 3000 Ft/m²-ig.Csaptelepek: 15.000 Ft/db.Kád vagy zuhany: 40.000 Ft.Beltéri ajtók: 35.000 Ft/db.WC: hagyományos Elektromos rendszer:Konnektorok:Szobák: 3 db.Nappali: 4 db + internet és kábel-TV kiállás.Konyha: 6 db.Világítás: helyiségenként 1 pont.Kábeltévé: előkészítés.Extra opciók:Magasabb kategóriás anyagok választása költségkülönbözet finanszírozása mellett.Riasztó- és kapumozgató rendszer előkészítése.Kérésre részletes tervdokumentáció és műszaki leírás is elérhető. A kivitelező korábbi referenciamunkái Tápióságon, Kókán és Sülysápon megtekinthetők előzetes egyeztetés alapján.Átadás várható időpontja: 2025 negyedik negyedév.Bármilyen kérdés, kérés esetén állunk rendelkezésre telefonon, üzenetben, vagy személyesen Isaszegi irodánkban! INTOR INGATLAN CSAPAT
További adatok
Telekterület: 950 m2
Kert mérete: 950 m2
Erkély mérete: 20 m2
Felszereltség: -
Parkolás: -
Kilátás: udvari
Egyéb extrák:  
-
Hirdető adatai
Hirdető neve: Intor Ingatlan Powered By RH
Hirdető telefonszáma: +36 70 412 5816