Pest megye, Gödöllő
 

Ingatlan adatai
Irányár: 132 000 000 Ft
Típus: ház
Kategória: eladó
Alapterület: 160 m2
Fűtés: egyéb
Állapota: -
Szobák száma: 6
Építés éve: 1983
Szintek száma: -
Részletes leírás
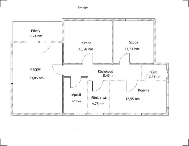
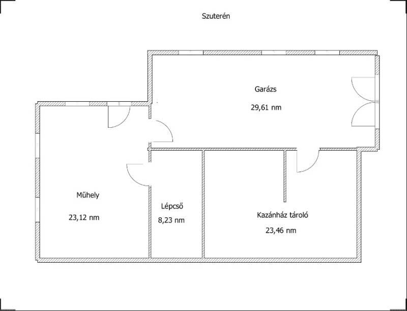
Eladó két generációs panorámás családi ház Gödöllőn, a kedvelt Blahai városrészben!Eladásra kínálunk egy kiváló elosztású 240 m2-es családi házat. Ez a két generációs családi ház 160 nm lakóterületű, Gödöllő kedvelt Blahai részén található. Az ingatlan tágas, világos, és ideális választás nagyobb családok számára vagy akár két generáció együtt élése esetén.Befektetésre is kiválóan alkalmas, mert kétlakásos társasházzá alakítható, jelenleg is belső folyosón közelíthető meg mindkét lakrész. Főbb jellemzők:Lakóterület két szinten: 160 nm (földszinten és emeleten szintenként 80 nm)Szuterén szint: 84 nm, benne garázs, műhely, tároló és kazánházErkélyek: 2 db, szintenként 6 nmTelek mérete: 642 nm Kialakítás:A ház belső lépcsőházzal kapcsolt, szintenként külön használható lakóegységekből áll. Minden szinten konyha, kamra, nappali erkéllyel, 2 db hálószoba, fürdőszoba található.A belső lépcsőházat a garázsból is meg lehet közelíteni, így teljesen elszeparált a két lakótér. Akár két lakásos társasházzá is alakítható, és akár ki is adható, ha valaki befektetésben gondolkodik.Az ingatlan tégla építésű, 1983-ban épült, folyamatos felújítást végeztek az évek során. Műszaki jellemzők:Fűtés: gázkazán, kiegészítve vegyes tüzelésű kazánnalHűtés/fűtés: szintenként hűtő-fűtő klímaNyílászárók: műanyag, szúnyoghálóval és redőnnyel felszerelveTető: nagytáblás cserepes lemezfedés, amely 2 éve lett kialakítva A gondozott, 642 nm-es telek elegendő teret biztosít pihenésre, kertészkedésre, vagy akár gyerekjátszótér kialakítására is.Ez a ház kiváló választás lehet azok számára, akik kétgenerációs megoldást, vagy külön lakrészt keresnek otthonukban, miközben élvezni szeretnék a gödöllői kertvárosi nyugalmat.Hitelügyintézésben bank független centrumunk segít Önnek!Ne hagyja ki ezt a lehetőséget – kérjen időpontot megtekintésre még ma!
További adatok
Telekterület: 642 m2
Kert mérete: 642 m2
Erkély mérete: 2 m2
Felszereltség: -
Parkolás: -
Kilátás: udvari
Egyéb extrák:  
-
Hirdető adatai
Hirdető neve: Intor Ingatlan Powered By RH
Hirdető telefonszáma: +36 70 467 6820