Pest megye, Budaörs
 

Ingatlan adatai
Irányár: 74 900 000 Ft
Típus: ház
Kategória: eladó
Alapterület: 79 m2
Fűtés: gáz (cirko)
Állapota: felújítást igényel
Szobák száma: 3
Építés éve: 1930
Szintek száma: -
Részletes leírás
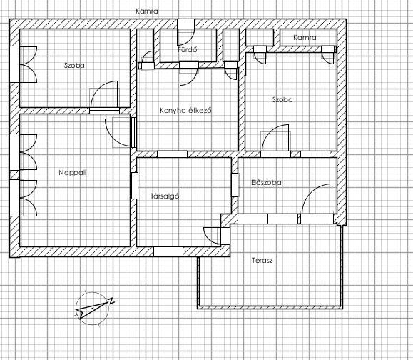
Budaörs szívében, felkapott, ám csendes környéken található ez a nettó 79 négyzetméteres, felújítandó ikerház-fél, amely tökéletes választás lehet azok számára, akik új otthonra vágynak vagy befektetési lehetőséget keresnek. Az ingatlan egy 815 négyzetméteres telken helyezkedik el, amelyből 250 m2 saját használatú. Közös a garázsokhoz vezető út, és a tároló. A házban jelenleg három tágas szoba, étkezős konyha, társalgó, előszoba, két kamra, két mosdó található. A ház alatt tágas nyári konyha és pince van és a tetőtér beépíthető, -akár két szoba, fürdő, tetőterasz is kialakítható- ahonnan szép panoráma tárul elénk. Fűtését gáz cirkó rendszer biztosítja, amely gazdaságos és hatékony megoldás a téli hónapokban. A 7,2 négyzetméteres terasz tökéletes helyszín a reggeli kávézásokhoz vagy a nyári estéken való kikapcsolódáshoz. Az ingatlanhoz tartozik egy saját, tágas garázs is -24 m2-, amely egy autó tárolására alkalmas, valamint tároló, amely segít rendben tartani a kerti eszközöket. Felújítása után a ház igazi nagybetűs és kényelmes otthonná válhat, amely világos és mindenki számára kényelmes. A ház osztatlan közös tulajdonban áll, és ügyvédi megosztási szerződéssel rendelkezik, melyet az új tulajdonossal -akár új paraméterekkel - újra lehet szerkeszteni. Elhelyezkedése kiváló, hiszen a közelben minden szükséges megtalálható, mint például boltok, iskolák, óvodák, uszoda akár sétálva is kényelmesen elérhetőek.A tömegközlekedés kitűnő : a Kötő utcai buszmegálló 150 méter, -40-88-140-188-240-287-940-972-es buszok- így a fővárosba való bejárás sem jelent problémát. A csendes utcák és a rendezett kert garantálják a nyugodt, családias légkört, amely ideális a mindennapi élethez. Ez a tehermentes ingatlan nagyszerű lehetőséget kínál, hogy valóra váltsa álmait, legyen szó saját otthonról vagy egy jövedelmező befektetésről. Ne habozzon, hiszen az ilyen lehetőségek gyorsan elkelnek! Amennyiben bármilyen kérdése merülne fel az ingatlannal kapcsolatban, bizalommal keressen minket, szívesen állunk rendelkezésére. Az ingatlan megtekintésére előre egyeztetett időpontban van lehetőség, hogy Ön is megtapasztalhassa ezt a sok lehetőséget tartogató házat, amely új otthona lehet.
További adatok
Telekterület: 815 m2
Kert mérete: 815 m2
Erkély mérete: 7 m2
Felszereltség: -
Parkolás: -
Kilátás: -
Egyéb extrák:  
-
Hirdető adatai
Hirdető neve: Otthon Centrum
Hirdető telefonszáma: +36 70 716 8736