Budapest, VI.kerület
 

Ingatlan adatai
Irányár: 169 000 000 Ft
Típus: kereskedelmi/ipari ingatlan
Kategória: eladó
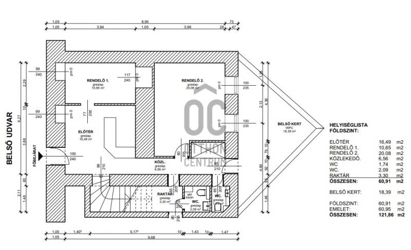
Alapterület: 121 m2
Fűtés: -
Állapota: -
Szobák száma: -
Építés éve: -
Szintek száma: -
Részletes leírás
Bejáratott Klinika Eladó!Felújított, igényes klinika Budapest szívében az Oktogonon. Ez a gyönyörű ingatlan egy privát orvosi klinikát rejt, amely kiváló lehetőséget kínál orvosoknak és egészségügyi szakembereknek, hogy saját praxisukat vagy klinikájukat működtessék a város központjában.Az ingatlan hivatalosan 53 négyzetméteres a tulajdoni lapon, de valóságban 121 négyzetméteres területtel rendelkezik, mivel a nagy belmagasságnak köszönhetően egy második szint kivitelezése is megtörtént. Ez a tágas és jól kialakított klinikaiösszesen 5 helyiségeket (4 rendelő, 1 db pihenő helyiség) és várótermet kínál a páciensek kényelmére, valamint egy teljesen felszerelt orvosi rendelőt a szakorvosok számára.A klinika a modern egészségügyi felszerelésekkel és berendezésekkel van ellátva, amelyek lehetővé teszik a páciensek kiváló ellátását és kezelését.Az Oktogon közelében található, így könnyen megközelíthető a tömegközlekedési eszközökkel és a város minden fontos pontja könnyen elérhető innen.Ez a rendkívüli ingatlan lehetőséget kínál egy prémium orvosi klinika működtetésére a város szívében. Ne hagyja ki ezt a ritka lehetőséget, hogy saját orvosi gyakorlatot indítson egy ilyen exkluzív ingatlanban.
További adatok
Telekterület: -
Kert mérete: -
Erkély mérete: -
Felszereltség: -
Parkolás: -
Kilátás: -
Egyéb extrák:  
-
Hirdető adatai
Hirdető neve: Otthon Centrum
Hirdető telefonszáma: +36 70 716 9266