Somogy megye, Fonyód
 

Ingatlan adatai
Irányár: 124 900 000 Ft
Típus: ház
Kategória: eladó
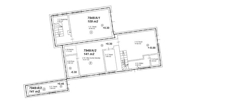
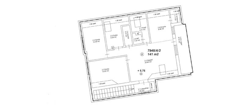
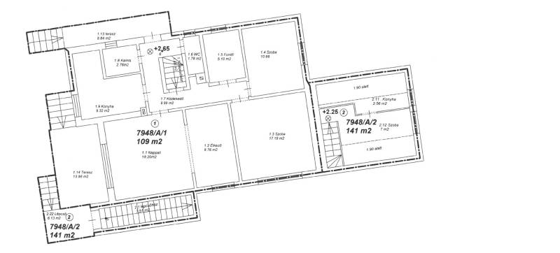
Alapterület: 250 m2
Fűtés: gáz (cirko)
Állapota: -
Szobák száma: 9
Építés éve: 1980
Szintek száma: -
Részletes leírás
Eladó ingatlan Fonyódon – Kényelmes otthon a Balaton közvetlen közelében!Fonyód, a Balaton déli partjának egyik gyöngyszeme, tökéletes választás mindazok számára, akik a természet közelségét, a nyugodt környezetet és a tóparti életstílust keresik, miközben a város minden előnye is elérhető. Az ingatlan mindössze 13 perces kényelmes sétára található a Balatontól.Ez a 250 m²-es ingatlan két különálló lakrészt kínál: az egyik 109 m², a másik 141 m². A két lakrész ideális választás állandó lakhatásra, nagyobb családok számára, de a Balaton közelsége miatt akár nyaraltatásra is kiválóan alkalmas. Mindkét lakás saját konyhával, fürdőszobával, tágas nappalival és több hálószobával rendelkezik, így maximális kényelmet biztosít az itt élők számára.A ház csendes, zöldövezeti környezetben helyezkedik el, miközben a fonyódi piac, móló, éttermek és egyéb szolgáltatások mindössze pár perc sétával elérhetők. Így a helyi központ pezsgése és a mindennapi szükségletek kielégítése is könnyedén megoldható. Az ingatlan belső terei igényesen kialakítottak: a tágas nappalik, világos szobák és konyhák, a kényelmes fürdőszobák minden igényt kielégítenek. A ház körüli kert és zöld terület ideális szabadtéri programokhoz, nyári grillezésekhez, pihenéshez a szabadban.Ez az ingatlan tehát nemcsak egy otthont kínál, hanem egy remek lehetőséget is, hogy a Balaton közelségében élvezze a pihenést. Ha szeretne többet megtudni erről a különleges ingatlanról, ne habozzon kapcsolatba lépni velünk!
További adatok
Telekterület: 472 m2
Kert mérete: 472 m2
Erkély mérete: -
Felszereltség: -
Parkolás: -
Kilátás: -
Egyéb extrák:  
-
Hirdető adatai
Hirdető neve: Otthon Centrum
Hirdető telefonszáma: +36 70 388 5366