Somogy megye, Balatonmáriafürdő
 

Ingatlan adatai
Irányár: 52 990 000 Ft
Típus: nyaraló
Kategória: eladó
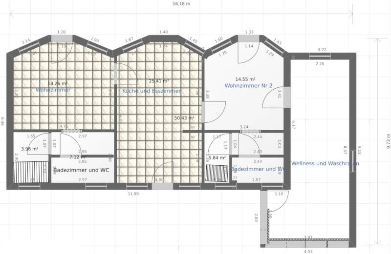
Alapterület: 100 m2
Fűtés: egyéb
Állapota: -
Szobák száma: 6
Építés éve: 1991
Szintek száma: -
Részletes leírás
KIEMELT MEGBÍZÁS! CSAK AZ OTTHON CENTRUM KÍNÁLATÁBAN!BALATONKERESZTÚRON ÖNÁLLÓ, KÉT LAKRÉSZES NYARALÓ ELADÓ!Az ingatlan főbb jellemzői:-lakófelület 100nm, telek terület 553nm-nagyobb családok, baráti társaságok kiváló nyaralója lehet-a házon külső 10 cm-es hőszigetelés van-az ingatlanban 2 klíma biztosítja az állandó hőmérsékletet télen-nyáron-kis wellness részleg került kialakításra a melléképületben: infraszauna, jakuzzi-a kertben merev falú medence került telepítésre-a nyaraló akár két különálló lakásként is funkcionálhat-a legközelebbi szabadstrand gyalogosan 850m-re találhatóAmennyiben felkeltette érdeklődését hívjon vagy írjon bizalommal!
További adatok
Telekterület: 553 m2
Kert mérete: 553 m2
Erkély mérete: -
Felszereltség: -
Parkolás: -
Kilátás: -
Egyéb extrák:  
-
Hirdető adatai
Hirdető neve: Otthon Centrum
Hirdető telefonszáma: +36 70 461 9191