Budapest, XVI.kerület
 

Ingatlan adatai
Irányár: 295 000 000 Ft
Típus: ház
Kategória: eladó
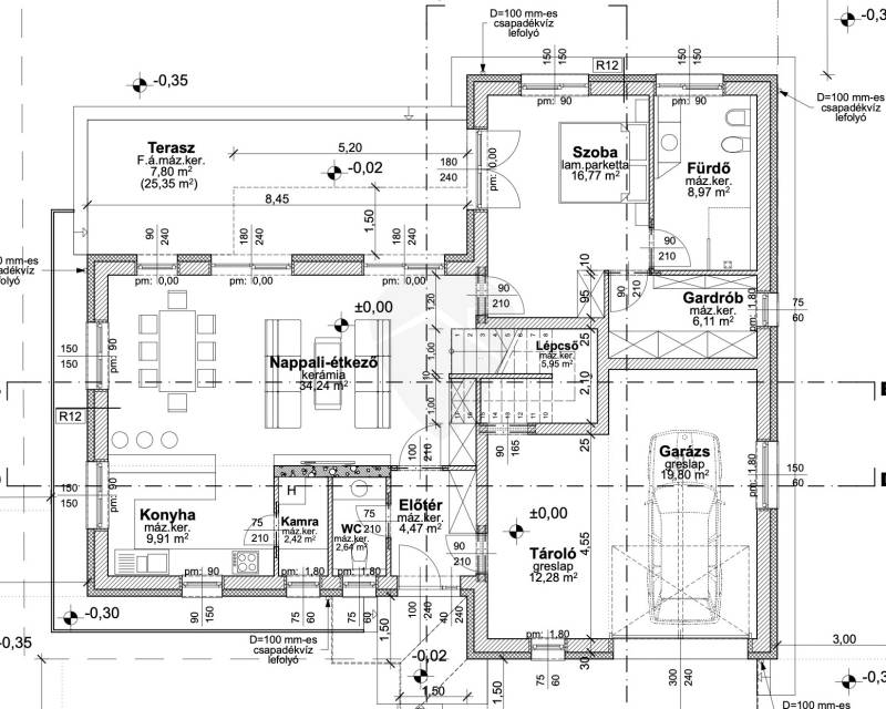
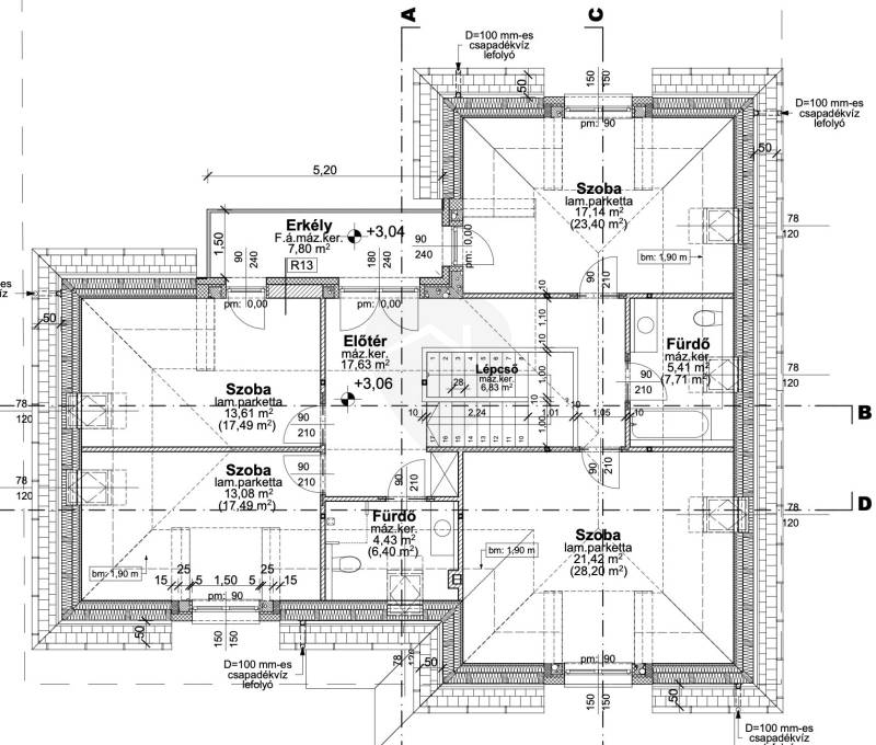
Alapterület: 200 m2
Fűtés: -
Állapota: -
Szobák száma: 5
Építés éve: 2025
Szintek száma: -
Részletes leírás
Keresi a tökéletes családi otthont Budapest egyik legbarátságosabb környékén?Most megtalálta! Megvételre kínálunk egy újonnan épülő, kétszintes, önálló családi házat Budapest egyik legszebb részén, a XVI. kerületi Sashalom csendes, kertvárosi zöldövezetében, alig pár lépésre Mátyásföldtől. Az ingatlan kiváló elhelyezkedésének köszönhetően ideális választás családok számára – a közelben óvoda, iskola, bevásárlási lehetőségek és tömegközlekedés is megtalálható.Ideális választás családoknak, mivel egy nyugodt kertvárosi környezetben található, mégis minden fontos intézmény és szolgáltatás karnyújtásnyira:- Óvoda, iskola, boltok a közelben.- Kiváló tömegközlekedés.- Családbarát, biztonságos környék.Az ingatlan főbb jellemzői:- 200 m² lakótér, modern, átgondolt elrendezéssel.- 25 m² terasz és erkély, a reggeli kávé vagy esti pihenés tökéletes helyszíne.- 617 m²-es önálló telek, ebből 370 m² zöldfelület – privát kert, ami csak az Öné.- Kétszintes kialakítás, külön szülői és gyerekrész.Térkialakítás – otthon, ahol mindenki jól érzi magát:Földszint:- Tágas amerikai konyhás nappali.- Különálló szoba (dolgozó vagy vendégszoba).- Gardrób, fürdőszoba és vendégmosdó.Emelet:- Három hálószoba (két nagyobb, egy kisebb).- Második, tágas fürdőszoba.Modern, energiatakarékos műszaki tartalom:- Hűtő-fűtő hőszivattyús rendszer, amely télen fűtést, nyáron pedig hűtést biztosít, energiát takarítva meg a háztartás számára.- Fűtött garázs két autó részére.Most még beleszólhat a részletekbe!A tervek jelenleg koncepció szinten állnak, így lehetőség van egyedi igények szerinti módosításokra – így valóban az Ön elképzelései szerint formálódhat az új otthona.További információkért, vagy személyes egyeztetésért keressen bizalommal!
További adatok
Telekterület: 617 m2
Kert mérete: 617 m2
Erkély mérete: -
Felszereltség: -
Parkolás: -
Kilátás: kertre néző
Egyéb extrák:  
-
Hirdető adatai
Hirdető neve: Most Home Kft.
Hirdető telefonszáma: +36 70 412 5655