Heves megye, Eger
 

Ingatlan adatai
Irányár: 69 900 000 Ft
Típus: lakás (tégla)
Kategória: eladó
Alapterület: 122 m2
Fűtés: gáz (konvektor)
Állapota: -
Szobák száma: 4
Építés éve: 1940
Szintek száma: -
Részletes leírás
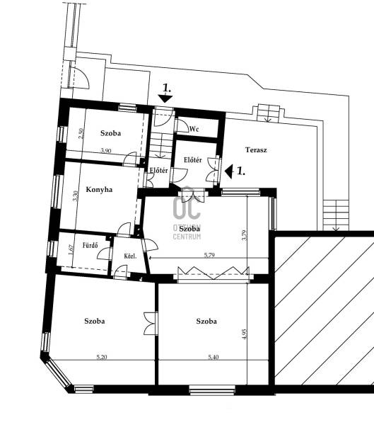
Eger városközpontjának közvetlen szomszédságában, a Károlyváros belső részén kínálunk eladásra egy tégla építésű, 122 négyzetméteres, patinás polgári saroklakást, amely kiváló lehetőségeket rejt magában befektetők számára. Az ingatlan négy szobájával, tágas belső tereivel, 3,3 méteres belmagasságával igényességet és eleganciát sugároz, és kisebb felújítással akár saját otthon kialakítására, akár bérbeadásra, akár vállalkozás indításához ideális választás lehet. Méretéből adódóan ezen lehetőségek közül egyszerre több is megvalósítható benne, ahogyan jelenleg is két részre van osztva, és az egyik fele bérlakásként funkcionál.A magasföldszint, amelynek nagyobb részét ez a lakás foglalja el, 1940 körül orvosi rendelő és orvoslakás céljára épült, a korszak modernista, de a polgári reprezentáció igényeinek megfelelő stílusában. Két évtizeddel később emeletráépítéssel ötlakásos társasházzá lett bővítve, de két közvetlen udvari bejáratával ez a lakás lényegében megőrizte különállását. A belső részen L alakú, tágas, saját terasz fogja körbe a nappalit, ahová egy előszobán keresztül lépünk be. A nappali a terasz adottságait követve két irányba tekintő tágas ablakokkal rendelkezik. Ez az egy helyiség laminált parkettával burkolt, viszont az utcákra néző két első, nagyobb méretű lakószoba szalagparkettás. Az ötszögű sarokszoba három irányba tekintő ablakaival járul hozzá a lakás egyediségéhez. Mind a nappaliból, mind a sarokszobából megközelíthető a fürdőszoba és a konyha egy kis közlekedőn keresztül. Ezenfelül egy kisebb hálószoba, különálló wc és az utcai lakrész saját előszobája tartoznak még a lakáshoz.Az ingatlan jelen formájában átlagos állagú, részben felújított. Az utcai lakrész ablakai műanyagra lettek cserélve, a belső részen megmaradtak a fa nyílászárók. A fűtés egységesen gázkonvektoros. A lakáshoz tartozó garázst a vételár nem tartalmazza, de a lakással együtt kedvezményes áron megvásárolható. Az udvar az utca felől nagyméretű vaskapuval elzárt, amely mind a lakás, mind a garázs biztonságát fokozza. A környék ellátottsága kiváló, hiszen a közeli üzletek, bevásárlóközpont, éttermek és szolgáltatások mindössze néhány perc sétára találhatóak. Akár autóval, akár tömegközlekedés igénybe vételével a város és a környék bármely pontja kiemelkedően jól megközelíthető innen. Az autóbusz-pályaudvar, a kormányablak, középiskolák, egyetem, posta, piac, minden szolgáltatás gyalogosan is gyorsan elérhetőek. Eger történelmi belvárosának közelsége miatt ez a lakás nemcsak lakóhely, hanem egy életstílus lehetőségét is kínálja.Ritkán kerül olyan ingatlan a piacra, amely ennyire sokféle hasznosításra nyújt kiváló lehetőséget. A befektetési céllal érdeklődők szabadjára engedhetik a fantáziájukat. A sarokrészen üzletajtó nyitásával bármilyen iroda, vendéglátóhely, szaküzlet, rendelő, civil szervezet, kozmetika stb. kaphat olyan székhelyet, amely egyszerre biztosítja a megyeszékhely frekventált, központi és biztonságos lokációját, és az ingatlan többi részében egyúttal a vállalkozás üzemeltetőinek tágas, kényelmes otthona is lehet. De elfér itt akár egy szálláshely vagy két bérlakás is. Tovább növeli az ingatlan értékét, hogy a 122 m2 egy szinten található, amely például egy nagyobb család otthonának kialakításához jelenthet előnyt.Amennyiben bármilyen kérdése van a lakással kapcsolatban, vagy szeretné megtekinteni, forduljon hozzánk bizalommal. Ne szalassza el ezt az egyedi lehetőséget Eger szívében!
További adatok
Telekterület: -
Kert mérete: -
Erkély mérete: -
Felszereltség: -
Parkolás: -
Kilátás: utcai
Egyéb extrák:  
-
Hirdető adatai
Hirdető neve: Otthon Centrum
Hirdető telefonszáma: +36 70 469 3071