Pest megye, Gödöllő
 

Ingatlan adatai
Irányár: 72 990 000 Ft
Típus: ház
Kategória: eladó
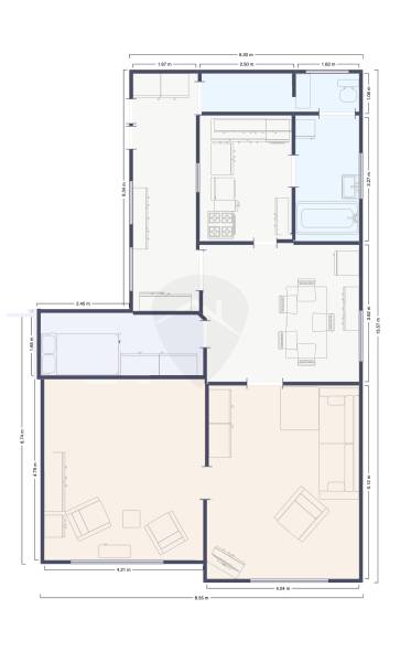
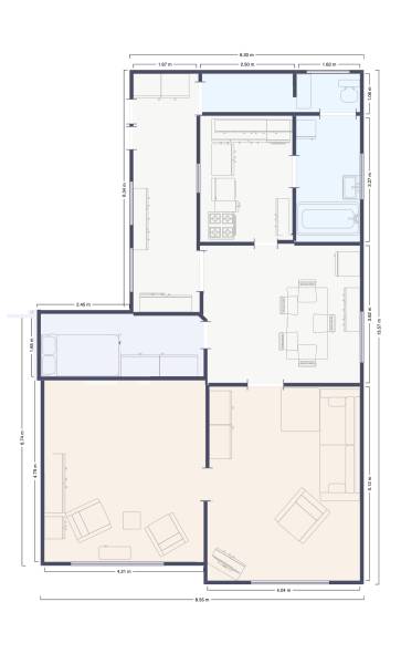
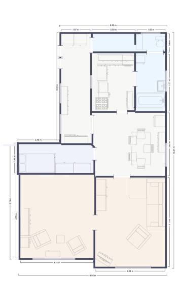
Alapterület: 100 m2
Fűtés: gáz (konvektor)
Állapota: -
Szobák száma: 3
Építés éve: 1950
Szintek száma: -
Részletes leírás
Eladó családi ház Gödöllő egyik legkedveltebb részén, Királytelepen!Gödöllő szívében, a közkedvelt Batthyány Lajos utcában, eladó egy 1950-es években épült tégla családi ház, amely 2220 m²-es, impozáns méretű telken helyezkedik el. A közel 150 méter hosszú telek kiváló lehetőséget kínál kertészkedésre, bővítésre vagy akár új beruházásra is.Az ingatlan részben alápincézett, fűtéséről gázcirkó gondoskodik, a melegvízellátás pedig villanybojlerrel történik. Az évek során részleges felújításokon esett át, azonban a villanyvezetékek még alumíniumból készültek, így korszerűsítésre szorulhat.A környék csendes, nyugodt, mégis kiváló infrastruktúrával rendelkezik – a közelben iskolák, boltok, tömegközlekedés és a város központja is könnyen elérhető.Tökéletes választás azok számára, akik nagy kerttel rendelkező, jól alakítható otthont keresnek egy prémium lokációban!Ne hagyja ki ezt a lehetőséget, hívjon bizalommal további információkért vagy megtekintésért!
További adatok
Telekterület: 2 220 m2
Kert mérete: 2 220 m2
Erkély mérete: -
Felszereltség: -
Parkolás: -
Kilátás: udvari
Egyéb extrák:  
-
Hirdető adatai
Hirdető neve: Intor Ingatlan Powered By RH
Hirdető telefonszáma: +36 70 412 5808