Budapest, XVIII.kerület
 

Ingatlan adatai
Irányár: 178 000 000 Ft
Típus: ház
Kategória: eladó
Alapterület: 238 m2
Fűtés: gáz (cirko)
Állapota: -
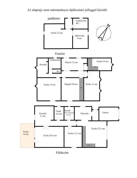
Szobák száma: 9
Építés éve: 1982
Szintek száma: -
Részletes leírás
A Szent Imre-kertvárosban található, kivételes lehetőséget kínáló ingatlanunk ideális választás családosok számára, akik a nyugalmat és a kényelmet keresik egy dinamikusan fejlődő környezetben. Ez a többszintes családiház, amely Budapest 18. kerületében, a Cziffra György utcában helyezkedik el, 237,8 négyzetméteres alapterületével és 946 négyzetméteres telekméretével bőséges teret biztosít minden családtag számára. A 9 szobás elrendezés lehetővé teszi, hogy a gyerekek külön szobában élvezhessék a magánéletüket, míg a közös terek ideálisak családi összejövetelekhez és baráti találkozókhoz. A ház három fürdőszobával rendelkezik, így a reggeli rohanás során senkinek sem kell várakoznia, és a kertkapcsolatos terasz tökéletes helyszín a reggeli kávézáshoz vagy a nyári estéken való pihenéshez. Az ingatlan állapota jó, a gáz (cirko) fűtés biztosítja a kellemes hőmérsékletet a téli hónapokban is. A garázsban egy autó parkolására van lehetőség. Tömegközlekedés szempontjából is kedvező helyen helyezkedik el az ingatlan, sétatávra busz- és villamosmegállók, így a munkahelyek és iskolák is gyorsan megközelíthetők. Szent Imre-kertváros vonzerejét növeli a jól kiépített infrastruktúra, amely magában foglalja az üzleteket, éttermeket és iskolákat, így mindennapi szükségletei könnyedén kielégíthetők. Amennyiben kérdése van az ingatlannal vagy a vásárlási folyamattal kapcsolatban, forduljon hozzám bizalommal.Szüksége van a vásárláshoz segítségre, pénzügyes kollégáink bankfüggetlen pénzügyi termékkínálatából tudja kiválasztani az Önnek legkedvezőbb megoldást. Ingatlan szakjogászunk a problémamentes vásárlás záloga.
További adatok
Telekterület: 946 m2
Kert mérete: 946 m2
Erkély mérete: 14 m2
Felszereltség: -
Parkolás: -
Kilátás: -
Egyéb extrák:  
-
Hirdető adatai
Hirdető neve: Otthon Centrum
Hirdető telefonszáma: +36 70 716 9831