Pest megye, Szigetszentmárton
 

Ingatlan adatai
Irányár: 69 900 000 Ft
Típus: ház
Kategória: eladó
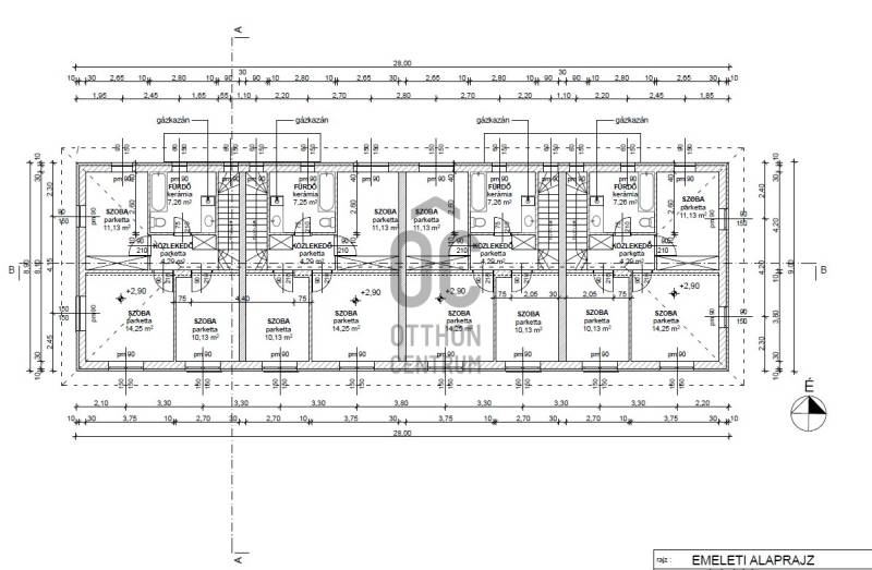
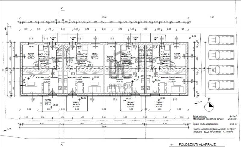
Alapterület: 97 m2
Fűtés: gáz (cirko)
Állapota: új
Szobák száma: 5
Építés éve: 2025
Szintek száma: -
Részletes leírás
Szigetszentmártonban eladó✅ Újépítésű sorház 3. lakása✅ Tégla✅ Nettó 97 M2✅ Nappali + 4 hálószoba✅ Két fürdőszoba✅ Fűtése: gázcirkó + egész házban padlófűtés✅ Ajándék klíma (1 db)✅ Saját parkolóhely✅ Saját kert✅️ kerti csap✅ összközműves✅ Telek: 50 m2Otthon start hitel ✅Várható átadás: 2025 év végeMegbízható, magyar építtető számos referenciával.Projekt bemutatásaEladó új építésű sorházi lakások Szigetszentmártonban✅️ 4 lakás ✅️ nettó 97 m2✅️ nappali + 4 hálószoba✅️ két fürdőszoba (alul zuhanyzó, felül kád)✅️ fűtése: gázcirkó + padlófűtés✅️ saját kert: 50 - 300 m2-igHitel, CSOK, otthon start igényelhetőVárható átadás: 2025 év végeTovábbi információkért kérem hívjon
További adatok
Telekterület: 48 m2
Kert mérete: 48 m2
Erkély mérete: 9 m2
Felszereltség: -
Parkolás: -
Kilátás: -
Egyéb extrák:  
-
Hirdető adatai
Hirdető neve: Otthon Centrum
Hirdető telefonszáma: +36 70 469 3111