Tolna megye, Bátaszék
 

Ingatlan adatai
Irányár: 95 000 000 Ft
Típus: kereskedelmi/ipari ingatlan
Kategória: eladó
Alapterület: 326 m2
Fűtés: -
Állapota: -
Szobák száma: -
Építés éve: 1980
Szintek száma: -
Részletes leírás
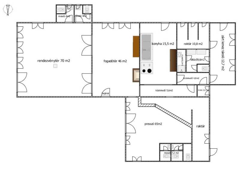
Az ingatlan jelenleg három funkcióra van kialakítva.Utoljára mint motel, rendezvényház konyhával, és italmérés működött.Az összese 326 négyzetméteres épület 2917 m2-es telken fekszik.A telken elegendő hely áll rendelkezésre a parkoláshoz is.Az épület tégla falazatú az italmérő és kiszolgáló helyiségei kivételével. Ez, utólagos hozzáépítés, mely könnyűszerkezetes.Fűtése központi gázfűtés, de a kandalló is működik.A tetőn napelemek lettek elhelyezve, amik jelentősen csökkentik az épület fenntartási költségét.A nyílászárók egy része fa, egy része hőszigetelt műanyag.A konyha alkalmas nagyobb társasági rendezvényeket- akár lakodalmakat is-kiszolgálni.Az emeleten 4 apartman és 4 szoba található.Az ingatlan egy alapos takarítást követően akár használatba is vehető.A bútorzat a vételár részét képezheti.Kedves Ügyfelünk, az ingatlanról videót is készítettünk. Ha ezt a hirdetést az Otthon Centrum weboldalán nézi, akkor a videóra a képek után tud kattintani. Ha egy másik weboldalon találta ezt a hirdetést, kérem nyissa meg az Otthon Centrum weboldalát, kattintson a „Regisztrációs szám keresése” menüpontra, és írja be ezt a regisztrációs számot a keresőbe: UZ017788. Itt meg tudja tekinteni az ingatlanról készült videót. Vagy írjon nekem, és szívesen elküldöm a videót.Ha lát benne fantáziát, ne habozzon!Hívjon és megmutatom!Ha a vásárláshoz hitelre lenne szüksége, kollégánk díjmentes, bankfüggetlen szolgáltatással, személyre szabott ajánlatokkal és teljes körű ügyintézéssel áll rendelkezésére!üzleti ingatlan motel rendezvényház vendéglátás kocsma nagy telek két szintes tégla napelem UZ017788
További adatok
Telekterület: -
Kert mérete: -
Erkély mérete: -
Felszereltség: -
Parkolás: -
Kilátás: -
Egyéb extrák:  
-
Hirdető adatai
Hirdető neve: Otthon Centrum
Hirdető telefonszáma: +36 70 388 6296