Budapest, VII.kerület
 

Ingatlan adatai
Irányár: 400 000 000 Ft
Típus: kereskedelmi/ipari ingatlan
Kategória: eladó
Alapterület: 575 m2
Fűtés: -
Állapota: -
Szobák száma: -
Építés éve: 1937
Szintek száma: -
Részletes leírás
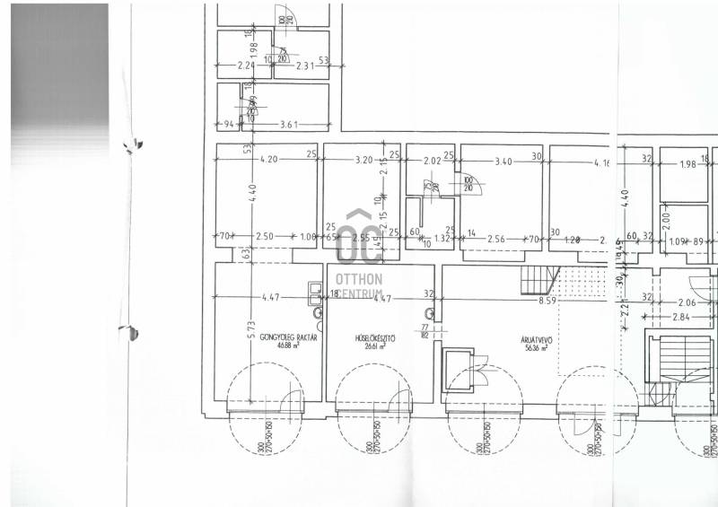
Külső-Erzsébetvárosban eladó egy bruttó 575 m2-es utcai kétbejáratos kereskedelmi ingatlan.Az üzlethelyiség egy az 1930-as évek elején épült lakóház sarkán található.Elosztás:földszint 330 m2, pince 180 m2, galéria 60 m2, az ingatlannak 2 bejárata van.Az ingatlan nagy üzlettérrel, nagy utcai portálokkal, hátul áruátvevő külön bejárattal rendelkezik.Teherlifttel ellátott pince , amely kitűnően alkalmas raktározásra.A galérián irodák, mosdók és öltöző található,. 2000-ben az eladótér felújításra került., a többi helyiség felújításra szorul.A belmagasság 4,5 és 5,0 m közötti,változik, álmennyezettel fedett.Fűtés-központi kazánKamerás megfigyelőrendszerKlimatizáltÉlelmiszerboltként funkcionált régebben, jelen leg üres állapotban van.Az ingatlan irányára 400 millió forint + 27% ÁFA.Fedezze fel ezt a kivételes üzleti célú ingatlant.. Ez a terület nemcsak a központi elhelyezkedésének köszönhetően vonzó, hanem a környék ellátottsága is kiváló, így ideális választás lehet bármely vállalkozás számára. Az ingatlan egy felkapott környéken helyezkedik el, amely, és számos lehetőséget kínál a bővítésre. Az ingatlan nagy belmagassággal rendelkezik ,így az Ön elképzelései szerint alakíthatja ki a belső teret A kitűnő közlekedés biztosítja, hogy a vendégek és az alkalmazottak könnyedén elérhessék az ingatlant. A közelben található tömegközlekedési lehetőségek, mind hozzájárulnak ahhoz, hogy az ingatlan stratégiai előnyöket biztosítson. A környék csendes, biztonságos, ideális helyszínt kínál a vállalkozások számára , a barátságos atmoszféra egyaránt hozzájárul a produktív munkakörnyezethez. A Városliget közelsége meghatározza a környék infrastruktúráját. Az ingatlan funkciója sokrétű,különböző üzleti tevékenységek megvalósítására alkalmas. Legyen szó üzlethelyiségről,l, bemutatóteremről vagy akár szolgáltató egységről, a lehetőségek széles spektrumot ölelnek fel. A környék dinamikus fejlődése és a folyamatosan bővülő szolgáltatások biztosítják, hogy az ingatlan értéke csak növekedni fog a jövőben.
További adatok
Telekterület: -
Kert mérete: -
Erkély mérete: -
Felszereltség: -
Parkolás: -
Kilátás: -
Egyéb extrák:  
-
Hirdető adatai
Hirdető neve: Otthon Centrum
Hirdető telefonszáma: +36 70 716 8956