Budapest, XX.kerület
 

Ingatlan adatai
Irányár: 70 000 000 Ft
Típus: ház
Kategória: eladó
Alapterület: 73 m2
Fűtés: gáz (cirko)
Állapota: -
Szobák száma: 4
Építés éve: 1980
Szintek száma: -
Részletes leírás
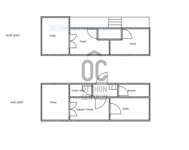
XX. Előd utcában, csendes, kertvárosi hangulatban eladó Önálló Családi HázHáz, kettő szintesAlsó szint: 47nm + terasz ami 13,5nmFelső szint: 26,7nm + erkély ami 13,5nmÖsszesen tehát az alapterület: 73,7nm + a terasz és az erkélyTelek mérete: 270nmKert hátsó felében van egy tároló és egy szerelő aknás garázsFűtése: gáz cirkó - BOSCH - kondenzációs, ez adja a meleg vizet isSaját gáz, villany és víz órája vanHáz szigetelveNyílászárók műanyagNincs előkert, az egyik szoba így utca frontiAlsó szint belmagassága 300cm, a felső szint mivel ráépítés lett az 200cmAblakos konyha, ablakos fürdőszoba !Terasz be lett építve, oda IS lett rakva konyha étkezővel fűtéssel, ÉS van egy másik konyha azt esetleg szobává lehet alakítani
További adatok
Telekterület: 270 m2
Kert mérete: 270 m2
Erkély mérete: 28 m2
Felszereltség: -
Parkolás: -
Kilátás: -
Egyéb extrák:  
-
Hirdető adatai
Hirdető neve: Otthon Centrum
Hirdető telefonszáma: +36 70 465 7036