Budapest, VI.kerület
Opera projekt 

Ingatlan adatai
Irányár: 133 270 000 Ft
Típus: lakás (tégla)
Kategória: eladó
Alapterület: 97 m2
Fűtés: egyéb
Állapota: új
Szobák száma: 3
Építés éve: -
Szintek száma: 4
Részletes leírás
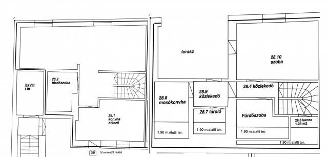
Kivételes adottságokkal rendelkező lakást vásárolhat az Operaház és a Szt. István Bazilika között! Teljesen felújított gótizáló stílusú liftes épület tetőterében kialakított, privát részben fedett 22m2-es tetőterasszal Az épület különleges stílusjegyeinek köszönhetően építészetileg is kiemelkedik. A külső és belső homlokzat egyaránt felújított, az új lakások kialakításával párhuzamosan nagyméretű felvonó került beépítésre. Pár perces sétával elérhető Budapest top 5 látnivalója. A lakás alsó szintjén helyezkedik el egy étkezős konyha mely akár szobává alakítható, egy fürdőszoba mellett a nappali és a hálószoba is itt található francia erkélyekkel. A felső szinten egy nagy méretű hálószoba és a hozzá tartozó fürdőszobán kívül egy 6m2-es mosókonyha került kialakításra mely tökéletes lehet akár dolgozó szobának. A 22-es terasz melyről rálátás nyílik a Bazilikára a lépcső feljáróból megközelíthető, a hálószoba érintése nélkül. A fűtés és hűtés modern hőszivattyúval megoldott lakásonként. A hő leadásra a padló és mennyezet hivatott, kiépítésre került az ilyen rendszerek elengedhetetlen részeként a hő visszanyerős szellőztető rendszer is mely folyamatos friss és tiszta levegő utánpótlás biztosítására is képes. A lakások jelenleg burkolatok nélkül várják a leendő tulajdonosaikat, így 100%-ban személyre szabhatóak. Minden lakás árnyékolás technikával ellátott mely igény esetén egy okos otthon rendszerrel is vezérelhető melynek előkészítése megtörtént. A lakásokra igénybe vehető kedvezményes zöld hitel is. Parkolás a szomszédos mélygarázsban megoldható.
További adatok
Telekterület: -
Kert mérete: -
Erkély mérete: 22 m2
Felszereltség: -
Parkolás: -
Kilátás: kertre néző
Egyéb extrák:  
-
Hirdető adatai
Hirdető neve: REGION Ingatlaniroda / Region Immo Kft
Hirdető telefonszáma: +36703675765