Budapest, VI.kerület
Nyugati tér 

Ingatlan adatai
Irányár: 255 000 000 Ft
Típus: lakás (tégla)
Kategória: eladó
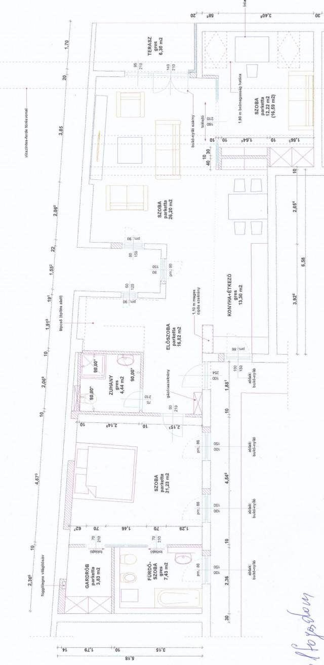
Alapterület: 141 m2
Fűtés: gáz (cirko)
Állapota: új
Szobák száma: 3
Építés éve: -
Szintek száma: 5
Részletes leírás
Belváros lüktető ütőerének közvetlen közelében, de mégis csendes mellékutcában ajánljuk figyelmébe ez a kitűnő, napfényes , legfelső emeleti ,tetőteraszos lakást. Ebben az ingatlanban ötvöződik az otthon és a befektetés fogalma. Kialakításának köszönhetően akár egy családnak is megfelelő életteret biztosíthat, két tágas hálószobával és két fürdőszobával. A nappali és a konyha jelen pillanatban egy egységet alkot 56m2-en azonban az alaprajznak és az ablak kiosztásnak köszönhetően könnyedén szeparálható akár mindkét helyiség ha nem híve ennek a kialakításnak. Nappali K - NY irányba is rendelkezik ablakkal így tényleg világosnak, naposnak mondható. A nappaliból nyílik az utcafront irányába egy kisebb terasz amely kb 2m x3m egy igazán jól használható, ráadásként pedig ott a lakáshoz tartozó 67m2-es tetőterasz mely kiemeli a belvárosi lakások sokaságából! Az épület kifogástalan állapotban van,kívül-belül felújított, új panoráma lifttel. Ez az ingatlan tökéletes keveréke a klasszikus polgári épületeknek és a modern új építésű lakásoknak. Befektetésnek sem utolsó, a megváltozott ingatlanpiacon is 20.000EUR bevételt termelt 2020-ban. A teljes képgaléria és még több hasonló ingatlan a Region IMMO honlapján megtekinthető.
További adatok
Telekterület: -
Kert mérete: -
Erkély mérete: 67 m2
Felszereltség: -
Parkolás: -
Kilátás: utcai
Egyéb extrák:  
-
Hirdető adatai
Hirdető neve: REGION Ingatlaniroda / Region Immo Kft
Hirdető telefonszáma: +36703675765