Zala megye, Keszthely
 

Ingatlan adatai
Irányár: 76 900 000 Ft
Típus: lakás (tégla)
Kategória: eladó
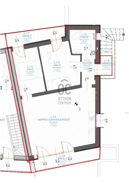
Alapterület: 61 m2
Fűtés: gáz (cirko)
Állapota: -
Szobák száma: 3
Építés éve: 2020
Szintek száma: -
Részletes leírás
A VÁROS SZÍVÉBEN DE MÉGIS NAGYON KÖZEL A BALATONHOZ ELADÓ EGY MODERN KERTKAPCSOLATOS LAKÁS!Keszthelyen, a Balaton parttól 400méterre található ez a szép és modern lakás, mely ideális választás lehet azoknak, akik egy kellemes és nyugodt környezetben szeretnének élni. -Az ingatlan 61 négyzetméter alapterületű,- Két szobával egy hatalmas étkező+nappali+konyha és egy fürdőszobával rendelkezik, -Valamint két nagy méretű és egy kisebb terasz is tartozik hozzá, melyről csodálatos panoráma nyílik a környékre. -Az ingatlan állapota kifogástalan, a fűtés gáz (cirko), a hűtés pedig klímával megoldott.-A lakáshoz tartozik egy 60nm es kertrész is. Az épületben lehetőség van még további funkciók kialakítására is, így akár irodaként vagy rendelőként is használható. A közlekedés szempontjából is kiváló helyen van, hiszen könnyen megközelíthető autóval és tömegközlekedéssel egyaránt. A környék számos előnyös adottsággal rendelkezik, így például a Balaton part mindössze pár perces sétára van, és a közelben számos kényelmi szolgáltatás is elérhető. Ha bármilyen kérdése lenne az ingatlannal kapcsolatban, nyugodtan keressen, hívjon bizalommal.
További adatok
Telekterület: -
Kert mérete: -
Erkély mérete: 14 m2
Felszereltség: -
Parkolás: -
Kilátás: utcai
Egyéb extrák:  
-
Hirdető adatai
Hirdető neve: Otthon Centrum
Hirdető telefonszáma: +36 70 388 5941