Budapest, VI.kerület
 

Ingatlan adatai
Irányár: 119 900 000 Ft
Típus: lakás (tégla)
Kategória: eladó
Alapterület: 75 m2
Fűtés: egyéb
Állapota: -
Szobák száma: 4
Építés éve: 1938
Szintek száma: -
Részletes leírás
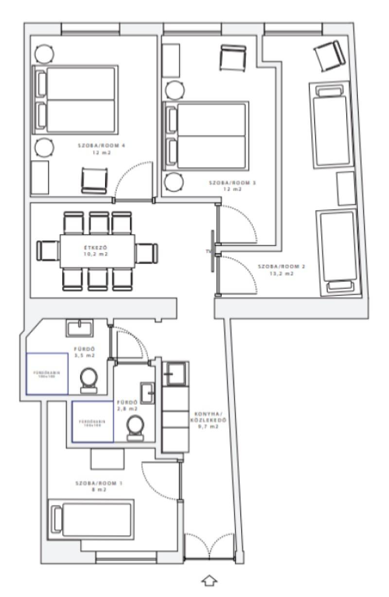
Budapest szívében a GOZSDU udvar SZOMSZÉDSÁGÁBAN (VI. kerület Belső Terézváros) kínálok eladásra egy belső építész által megálmodott és magas minőségben kivitelezett, 75 nm-es, 4 teljes szobás, 2 külön bejáratú fürdőszobás, tipikusan MAGÁNSZÁLLÁSHELY (AIRBNB, BOOKING) céljából kialakított, TELJESKÖRŰEN és MAGAS MINŐSÉGBEN FELÚJÍTOTT, utcai nézetű lakást.Engedéllyel és HRSZ-re szóló társasházi közgyűlési hozzájáruló határozattal rendelkezik - 7 főre, 4 vendégszoba (2 db 12 m2-es és 1 db 13,1 m2-es utcai 1 db 8 m2-es udvari szobával).Az ingatlan jelenleg is működő Airbnb profillal és foglalásokkal rendelkezik, mely igény esetén továbbvihető, azonnal működtethető. Átlag HAVI ÁRBEVÉTELE bruttó 2.500 euró. 2 db külön bejáratú fürdőszobájában egyedi épített zuhanyt, WC-t és mosdót alakítottak ki.Minden helyiség külön klimatizált - lefolyóba bekötött cseppvíz elvezetéssel.Konyhája gépesített, beépített hűtőszekrénnyel, mosogatógéppel, főzőlappal és mikrohullámú sütővel, valamint 8 főre teljes felszereltséggel.Utcai ablakai teljesen hangszigeteltek - dupla sorosak, külső oldalon 3 rétegű-, belső oldalon 2 rétegű hőszigetelt műanyag nyílászárók.Elektromos hálózatát 3x25 Amperre bővítették.Bármerre is indul a városban, a környéken mindig megtalálja a legjobb lehetőséget a tömegközlekedésre, hiszen a 4-6-os villamos, a 70-es, 78-as, 74-es trolibuszok mellett az 1-es 2-es és 3-as metróvonal, valamint számos nappali és éjszakai buszjárat rövid sétatávolságon belül elérhető, továbbá a legnépszerűbb üzletek, éttermek, szolgáltatások, bevásárlóközpontok, illetve kulturális és szórakozási lehetőségek is megtalálhatók a közelben, ezért is vonzó célpont a fiatalok, diákok és turisták számára, akár rövid-, akár hosszútávú kiadásban gondolkozik, kiemelkedően magas hozamot jelentenek tulajdonosaik számára.Bővebb információért várom hívását!Egyedi igényekre szabott lakáshitelekkel állunk rendelkezésére.Bankfüggetlen hitelcentrumunk az országban elérhető összes bank és hitelintézet ajánlatát versenyezteti az Ön számára díjmentesen.Munkatársaink nagy szakmai tapasztalattal várják Önt az előre egyeztetett időpontban akár a normál munkaidő után is.
További adatok
Telekterület: -
Kert mérete: -
Erkély mérete: -
Felszereltség: -
Parkolás: -
Kilátás: utcai
Egyéb extrák:  
-
Hirdető adatai
Hirdető neve: Otthon Centrum
Hirdető telefonszáma: +36 70 461 9491