Zala megye, Cserszegtomaj
 

Ingatlan adatai
Irányár: 180 000 000 Ft
Típus: ház
Kategória: eladó
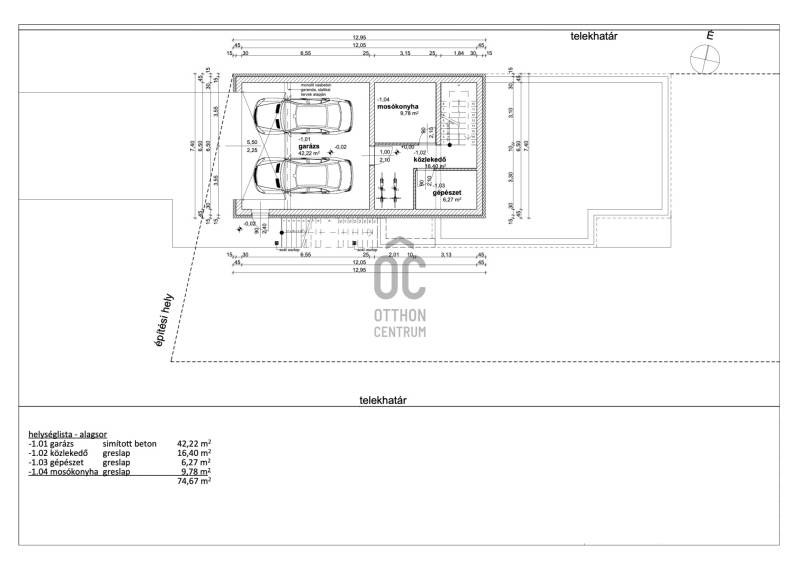
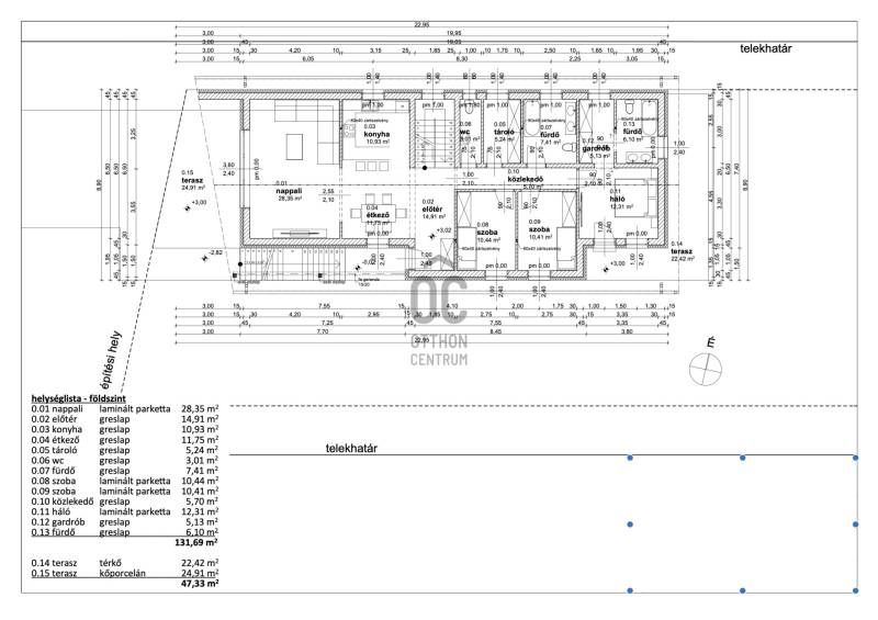
Alapterület: 230 m2
Fűtés: -
Állapota: új
Szobák száma: 4
Építés éve: 2023
Szintek száma: -
Részletes leírás
CSAK AZ OTTHON CENTRUM KIEMELT KÍNÁLATÁBAN !Figyelmükbe ajánlom a festői Cserszegtomaj legújabb ékkövét , egy modern , új építésű , eladó családi házat . Ez a páratlan ingatlan a letisztult dizájnt , modern élet stílust, kényelmet és a prémium anyaghasználatot ötvözi ,tökéletes otthont kínálva Ön és családja számára.AZ INGATLAN FŐBB JELLEMZŐI:- Ár euroban : 547.500€- 210 m2 lakófelület + dupla terasz , a hátsó terasz grillezésre alkalmas - 1519 m2 telek terület - Falazat : Porotherm 30 tégla + 15 cm Austrotherm hőszigetelést.- Tető : 25 cm vastag tetőszigetelés, Terra antracit cserépfedés.- Tetőtér: Beépíthető, ideális belmagassággal, víz-villany-csatorna felvezetve- Fődém: Monolit vasbeton fődém - Elektromosság:3x20 A , elérhető H-áram tarifával- Nyílászárók: 3 rétegű műanyag szerkezetű nyílászárók elektromos redőnyökkel, nappaliban zsaluziával felszerelt- Fűtés és Hűtés: Padlófűtés és mennyezet hűtés, 16 kW-os Fisher hőszivattyús rendszer, mely a melegvíz ellátását is biztosítja.- Hőszabályozás:Helyiségek külön és központilag termosztáttal vezérelhetők.- Teraszon üveg korlát- cpl beltéri ajtók- Konyhabútor benne van az árban-Wellis szaniterek- Medence: 5x3 méteres, fűtés nélküli medence.- A ház okosítása lehetséges- Belső kaputelefon betelepítve.- Hörmann elektromos garázskapu- Kerítés: elől antracit lemez kapu és 2 szárnyú nyíló elektromos kapu ,oldalt antracit drótfonat-Parkosított kertKiváló ingatlan azok számára, akik minden igényt kielégítő, esztétikus környezetben szeretnék megtapasztalni a balatoni életstílust ,közel a Balatonhoz és Hévízhez , mind otthonként , mind nyaralóként használva.AMENNYIBEN FELKELTETTEM ÉRDEKLŐDÉSÉT , FORDULJON HOZZÁM BIZALOMMAL , VÁROM HÍVÁSÁT AZ ORSZÁG LEGNAGYOBB ÉS LEGELISMERTEBB INGATLANKÖZVETÍTŐ HÁLÓZATA NEVÉBEN!
További adatok
Telekterület: 1 519 m2
Kert mérete: 1 519 m2
Erkély mérete: 47 m2
Felszereltség: -
Parkolás: -
Kilátás: -
Egyéb extrák:  
-
Hirdető adatai
Hirdető neve: Otthon Centrum
Hirdető telefonszáma: +36 70 412 5631