Heves megye, Gyöngyös
 

Ingatlan adatai
Irányár: 35 000 000 Ft
Típus: ház
Kategória: eladó
Alapterület: 100 m2
Fűtés: gáz (konvektor)
Állapota: felújítást igényel
Szobák száma: 3
Építés éve: 1950
Szintek száma: -
Részletes leírás
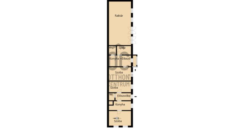
Eladó egy 3 szobás, 2 generációs 2 fürdőszobás ház, Gyöngyösön, a Petőfi Sándor utca elején, ami akár befektetés céllal is alkalmas lehet!Az alapterülete 100 nm, a telek mérete pedig 386 nm. Az állapota felújítandó, a fűtés gáz (konvektor). A helyiségek könnyen átalakíthatóak és különböző célokra használhatók Az ingatlan környéke kiváló ellátottsággal rendelkezik, és a közlekedési lehetőségek is kitűnőek. Az autóval közlekedőknek nagyon könnyen megközelíthető, autó beállóval rendelkezik. Az ingatlan tehermentes, így azonnal birtokba vehető! A főtértől ez mindösszesen 2 perc sétára van, és a közelben megtalálható szinte minden üzlet: óvoda, iskola, fogorvosi rendelők, gyógyszertár, bankok, stb.Egy város közepén található 50 négyzetméteres helyiség különböző elnevezésekkel illethető attól függően, hogy mire használják, illetve milyen célt szolgál. Íme néhány példa:Raktár -Kiváló lehetőség tárolásra, ami különösen hasznos lehet vállalkozások vagy hobbitevékenységek számára.Esetleg bérbe is adható, további bevételi forrást biztosítva.Üzlethelyiség - kiskereskedelmi boltnak vagy szolgáltató egységnek.Irodahelyiség - Irodák létesítésére.Műhely - ipari vagy kézműves tevékenységre használatára.Bemutatóterem - termékek vagy szolgáltatások bemutatására.Stúdió - kreatív tevékenységekre, például fotózásra, művészetre vagy médiatermelésre.Kereskedelmi ingatlan -az ingatlant többféle kereskedelmi célra is használható.Rendezvényterem - események vagy rendezvények lebonyolítására! Egy borospincével IS rendelkezik ami számos előnyt kínálhat:Ideális hely borkedvelők számára, ahol megfelelő körülmények között tárolhatják boraikat.Társasági események, kóstolók szervezésére is alkalmas.Növeli az ingatlan exkluzivitását és értékét.Jellemzője:Első lakrész:-Szoba :22nm- Szoba:14,5nm-Konyha:11nm-Fürdő+wc:4nm-Előszoba:6 nm-Spajz:1,6 nmHátsó lakrész:-Szoba:17,23nm-Konyha +étkető:14nm-Előszoba:3,3nm-Spájz:3nm-Fürdőszoba:3,6nm-Raktárhelység:50,4 nm-Pince:100nmHa bármilyen kérdése van az ingatlannal kapcsolatban, forduljon hozzám bizalommal.Készséggel állok rendelkezésére, és szívesen segítek Önnek az ingatlan megtekintésében és az ügyintézéssel kapcsolatban. Ne habozzon, és vegye fel velem a kapcsolatot még ma!
További adatok
Telekterület: 386 m2
Kert mérete: 386 m2
Erkély mérete: -
Felszereltség: -
Parkolás: -
Kilátás: -
Egyéb extrák:  
-
Hirdető adatai
Hirdető neve: Otthon Centrum
Hirdető telefonszáma: +36 70 469 3286