Somogy megye, Balatonboglár
 

Ingatlan adatai
Irányár: 550 000 000 Ft
Típus: kereskedelmi/ipari ingatlan
Kategória: eladó
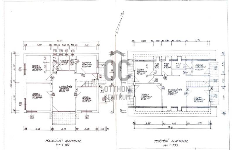
Alapterület: 630 m2
Fűtés: -
Állapota: -
Szobák száma: -
Építés éve: 1980
Szintek száma: -
Részletes leírás
Balatonbogláron befektetők figyelmébe ajánlok egy kedvelt, frekventált helyen fekvő, 1700 nm-es telken elhelyezkedő épületegyüttest! A gyors megtérülési mutatókkal rendelkező 14 szobás panzió, és a 140 fő befogadására alkalmas étterem most fantasztikus lehetőséget kínál! Az ingatlan olyan paraméterekkel rendelkezik, mely széles tömegek érdeklődésére tart számot, a különálló 70 nm-es alapterületű ház pedig életvitelszerű ottélésre és/vagy központi irodának egyaránt alkalmas.További előnyök:Kialakult és folyamatos vendégkörrel rendelkezik!Az ingatlan abszolút per és tehermentes! Az eladási árba beletartozik minden ingóság!A Balaton part mindösszesen 100 méterre van.Igényes, minőségi anyagokból épült, folyamatosan karbantartott épületegyüttes.Gondozott, virágokkal, fákkal teli kert.50 m3-es (10 m * 4 m; 1,3 m mélységű) úszómedence kerti bútorokkal (napozó ágyak, napernyők, asztalok, székek).A fedett teraszon kerti sütő kemence, bográcsozó, sütögető hely várja a vendégeket.Egy garázs és egy kisebb melléképület is van a telken. Kiváló adottságokkal rendelkezik, a közelben hajóállomás és vizi csúzdák találhatóak, a vasútállomás 10 perces gyalogos távolságban. Amennyiben felkeltette érdeklődését ez az ingatlan befektetés, hívjon bizalommal!
További adatok
Telekterület: -
Kert mérete: -
Erkély mérete: -
Felszereltség: -
Parkolás: -
Kilátás: -
Egyéb extrák:  
-
Hirdető adatai
Hirdető neve: Otthon Centrum
Hirdető telefonszáma: +36 70 461 9061